30-12-2012, 02:00
Hallo zusammen,
ich denke derzeit über eine Alarmanlage/EMA nach.
Ich habe bereits einiges im Netz und auch im Forum gelesen, aber das Richtige habe ich noch nicht gefunden. Weiterhin hatte ich bereits eine Beratung von einer Firma, welche Anlagen von Telenot anbietet, ich hoffe ich darf den Namen nennen. Hierüber erhalte ich noch ein Angebot.
Allgemein
Ich tendiere zu einer kabelgebundenen Anlage.
Teils kommen neue Fenster, sollte ich hier vom Fensterbauer schon Sensoren im Rahmen/auf der Scheibe verbauen lassen?
Welche Anlage(n) könnt ihr mir empfehlen?
Was gibt es für preisliche Varianten? Wo ist der Unterschied?
Welche Sensoren nicht zweckmäßig?
Ich möchte eine Außenhautsicherung, wenn wir im Haus sind.
Wenn wir schlafen den Wintergarten und evtl. den Keller zuschalten.
Wenn wir außer Haus sind alles scharf.
So nun einige Infos zu meinem Objekt.
Das Haus habe ich vor kurzen erworben Baujahr 1960.
Keller, Erdgeschoss, 1. Obergeschoss, Dachboden (aktuell nicht ausgebaut)
Keller:
Mehrere Fenster => werden vergittert
1x Kellertür
Erdgeschoss:
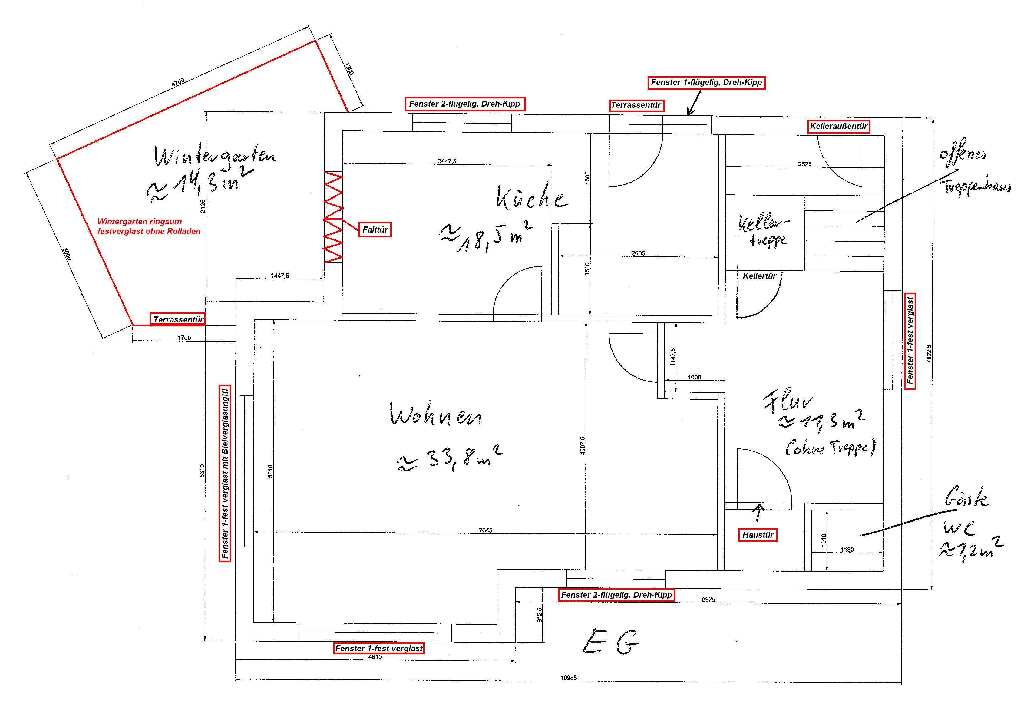
Wintergarten (angrenzend an die Küche mit Faltentür trennbar)
12x Feste Fenster
1x Tür
Küche:
1x Fenster, 2 flügelig (kommt neu, noch nicht bestellt)
1x Fenster, 1 flügelig (kommt neu, noch nicht bestellt)
1x Terrassentür (kommt neu, noch nicht bestellt)
Wohnzimmer:
1x Fenster Festelement allerdings mit Bleiverglasung, nicht Glasbruchmelder geeignet
1x Fenster Festelement (kommt neu, noch nicht bestellt)
1x Fenster, 2 flügelig (kommt neu, noch nicht bestellt)
Flur:
1x Fenster Festelement (kommt neu, noch nicht bestellt)
1x Tür zum Keller (normale Wohnungstür)
1x Haustür (kommt in 1-2 Jahren neu)
Obergeschoss:(ich nenne hier nur die relevanten Elemente)
2x Balkontür (kommt neu, noch nicht bestellt)
1x im Flur ist eine Luke/Dachbodentreppe
In den 2 Skizzen habe ich nocheinmal die Fenster und Türen benannt.
[attachment=265]
[attachment=266]
So, das war es für das erste. Ich hoffe ihr könnt mir einige Tipps geben.
Danke und Gruß,
Peter
ich denke derzeit über eine Alarmanlage/EMA nach.
Ich habe bereits einiges im Netz und auch im Forum gelesen, aber das Richtige habe ich noch nicht gefunden. Weiterhin hatte ich bereits eine Beratung von einer Firma, welche Anlagen von Telenot anbietet, ich hoffe ich darf den Namen nennen. Hierüber erhalte ich noch ein Angebot.
Allgemein
Ich tendiere zu einer kabelgebundenen Anlage.
Teils kommen neue Fenster, sollte ich hier vom Fensterbauer schon Sensoren im Rahmen/auf der Scheibe verbauen lassen?
Welche Anlage(n) könnt ihr mir empfehlen?

Was gibt es für preisliche Varianten? Wo ist der Unterschied?
Welche Sensoren nicht zweckmäßig?
Ich möchte eine Außenhautsicherung, wenn wir im Haus sind.
Wenn wir schlafen den Wintergarten und evtl. den Keller zuschalten.
Wenn wir außer Haus sind alles scharf.
So nun einige Infos zu meinem Objekt.
Das Haus habe ich vor kurzen erworben Baujahr 1960.
Keller, Erdgeschoss, 1. Obergeschoss, Dachboden (aktuell nicht ausgebaut)
Keller:
Mehrere Fenster => werden vergittert
1x Kellertür
Erdgeschoss:
Wintergarten (angrenzend an die Küche mit Faltentür trennbar)
12x Feste Fenster
1x Tür
Küche:
1x Fenster, 2 flügelig (kommt neu, noch nicht bestellt)
1x Fenster, 1 flügelig (kommt neu, noch nicht bestellt)
1x Terrassentür (kommt neu, noch nicht bestellt)
Wohnzimmer:
1x Fenster Festelement allerdings mit Bleiverglasung, nicht Glasbruchmelder geeignet
1x Fenster Festelement (kommt neu, noch nicht bestellt)
1x Fenster, 2 flügelig (kommt neu, noch nicht bestellt)
Flur:
1x Fenster Festelement (kommt neu, noch nicht bestellt)
1x Tür zum Keller (normale Wohnungstür)
1x Haustür (kommt in 1-2 Jahren neu)
Obergeschoss:(ich nenne hier nur die relevanten Elemente)
2x Balkontür (kommt neu, noch nicht bestellt)
1x im Flur ist eine Luke/Dachbodentreppe
In den 2 Skizzen habe ich nocheinmal die Fenster und Türen benannt.
[attachment=265]
[attachment=266]
So, das war es für das erste. Ich hoffe ihr könnt mir einige Tipps geben.
Danke und Gruß,
Peter
Aber trotzdem vielen Dank für deine Nachfrage!
Wenn weitere Fragen bestehen, immer heraus damit!

Also entweder ich verabschiede mich hiermit von der Alarmanlage oder ich finde noch ein anderes Level. 
) liegt in der Natur der Sache und ist auch ok ... 


