|
Alarmanlage für Neubau
|
|
09-01-2010, 16:04
Beitrag: #1
|
|||
|
|||
|
Hallo liebes Forum
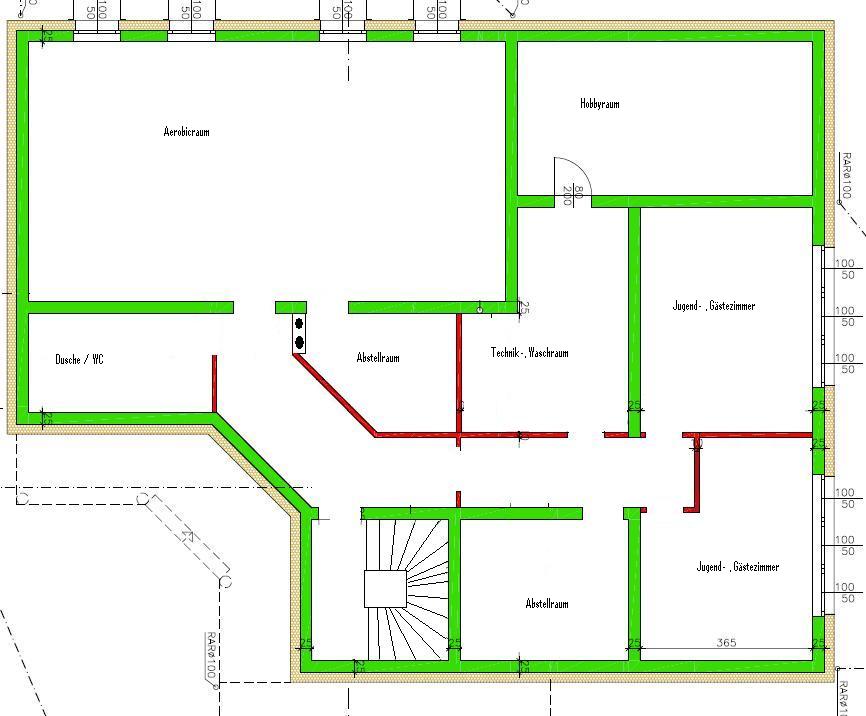
ich habe mir schon einige Beiträge durchgelesen und mir gefallen die Antworten so gut, dass ich beschlossen habe auch mal ein paar Fragen zu stellen Wir bauen momentan ein Haus und sind gerade dabei alle Elektroleitungen zu stemmen, deswegen ist die Alarmanlage natürlich jetzt auch ein Thema für uns um möglichst alles perfekt vorzubereiten. Da wir nicht viel Ahnung haben was wir alles benötigen schreib ich euch erstmal die Fakten: Unsere Fenster und Türen haben wir direkt mit Kontakten bestellt. Es sind solche Kontakte, die auch bei gekippten Fenstern aktiviert sind und die mit einem Sabotageschutz versehen sind. - Wir haben im EG 14 Fenster (2 Terassentüren + 12Fenster) 4 Alarmgesicherte Außentüren (2 zum Haus, 2 in die Garage)(Garage und Haus sind miteinander verbunden) - Im KG sind es 6 Fenster die gesichert sind (Keine Lichtschächte) - Im Dach gibt es keine Fenster. Wir wollen trotz der ganzen Kontakte noch Bewegungsmelder anbringen. Da wäre die Frage wo man diese am Besten installiert. Desweiteren wollen wir auf jeden fall ein GSM Modul installieren und 2 "Codeschlösser" eins bei der Eingangstür und eins bei der Garage. Anbei hab ich euch mal eine Skizze vom EG und KG angehängt. Was genau brauchen wir um eine brauchbare Alarmanlage zu installieren und was würde der Spass ca. Kosten? Vielleicht habt ihr noch ein paar Tipps, Infos und Anregungen für uns. Wir würden uns sehr darüber freuen. Vielen Dank schonmal im Voraus. MFG Jens & Claudia |
|||
|
09-01-2010, 22:13
Beitrag: #2
|
|||
|
|||
RE: Alarmanlage für Neubau
tutrock schrieb:Hallo liebes ForumHallo Claudia und Jens, danke für "die Blumen" und auch euch natürlich erst einmal ein herzliches Willkommen in unserem Forum! ![]() tutrock schrieb:Wir bauen momentan ein Haus und sind gerade dabei alle Elektroleitungen zu stemmen, deswegen ist die Alarmanlage natürlich jetzt auch ein Thema für uns um möglichst alles perfekt vorzubereiten.Exakt der richtige Zeitpunkt! Und ich muss euch loben, ihr habt eure Fragen wohlformuliert und es ist auch ersichtlich, dass ihr euch schon die richtigen Gedanken gemacht habt - das zeigt sich ja auch daran, dass ihr euch die Fenster- und Türelemente gleich MIT Kontakten bestückt liefern lasst, super!!! Natürlich habe ich dazu noch einige Nachfragen: - Es wird sich ja sicherlich um Elemente handeln, die ab Werk schon eine gewisse (erhöhte) Grundsicherheit gegen Aufhebeln bieten also Pilzkopfverriegelungen, 5-fach-Schließung usw. *hoff* - Die Öffnungskontakte sind dann also sogenannte Magnet- oder Reedkontakte, aber werden auch gleich Glasbruchsensoren mit eingebaut (sofern die Elemente denn fertig verglast geliefert werden und nicht erst nach dem Einbau vor Ort Ihre Scheiben bekommen)??? Eine Glasbruchüberwachung halte ich für eine komplette(!) Außenhautsicherung für sehr wichtig... Die einzige Begründung (für mich persönlich, auch da hat ja jeder so seine eigenen Ansichten), aufgrund derer man auf Glasbruchsensoren verzichten könnte, ist die Verwendung von einbruchhemmender Verglasung (Stichwort WK - Widerstandsklasse), d.h. eine Scheibe der (doppelten oder sogar dreifachen) Isolierverglasung besteht aus Verbundsicherheitsglas. Bleibt also die Frage, ob diese bereits geplant (und bestellt?) ist oder bei einer eventuellen Auftragsänderung nachgerüstet werden könnte - durch die VSG-Verglasung wird die Isolierglasscheibe natürlich dicker (bis zu 8mm) und das passt dann nicht mehr zwingend in jedes Element hinein... :o( Wer die aufgeklebten Kontakte nun absolut nicht sehen mag, hat auch noch die Option, sich "Alarmglas" einbauen zu lassen - in diesem ist eine Alarmspinne (also ein Kontaktnetz aus dünnem Draht, das bei Glasbruch zerrissen wird und so eine Alarmlinie auslösen kann) integriert (sichtbar oder auch im Falzbereich versteckt, also durch die Leisten abgedeckt und damit nicht sichtbar), kostet aber leider auch ein stattliches Sümmchen... tutrock schrieb:Da wir nicht viel Ahnung haben was wir alles benötigen schreib ich euch erstmal die Fakten:Das ist auch vollkommen richtig so, denn ein gekipptes Fenster ist für die Versicherung im Schadensfall ein offenes Fenster! Und eine (oder mehrere) Sabotagelinie(n) sollte man immer mit einplanen, auch wenn noch immer einige "Fachleute" behaupten, in Privathäusern wäre das aufgrund des geringeren Risikos nicht unbedingt nötig... tutrock schrieb:- Wir haben im EG 14 Fenster (2 Terassentüren + 12Fenster)Ich setze dann mal voraus, dass keine frei laufenden Haustiere wie Hund und Katze bei euch existieren (Fische im Aquarium stören eine Anlage nicht so wirklich), korrekt? Es gibt zwar angeblich haustierresistente Melder (bis ca. 45kg, glaube ich), aber ich habe bis heute noch nicht verstanden, wie es ein Bewegungsmelder hinkriegt, die Katze direkt vor ihm auf dem Schrank zu wiegen ![]() Doch Spaß beiseite: wenn ich mir dann eure Zeichnungen so anschaue, komme ich auf 5 bis 7 Bewegungsmelder, die man wie folgt verteilen sollte: Kellergeschoss: - 1x Aerobicraum (Ecke Außenwand/Hobbyraum) - 1x Vorflur zu den beiden Gästezimmern (an die rot gezeichnete Wand (Gipskarton?) mit Blickrichtung Treppenhaus Erdgeschoss Wohnhaus/Garage: - 1x Flur (am Mauervorsprung, wo die schräge Haustürwand zum Treppenhaus "abbiegt", Blickrichtung Garderobe, um den gesamten Bereich zwischen Wohn-/Esszimmer und dem Büro-/Schlaftrakt zu überwachen) - 1x Wohnzimmer, weil hier meist die größten Werte lagern (zwischen Terrassentür und Fenster, Blickrichtung Esszimmer/Küche bzw. Schiebetür? zwischen WZ und EZ/KÜ) - 1x im Vorflur SZ/KiZi (Wand des Schrankraumes, Blickrichtung Tür zum Hauptflur/Diele und Büro) - 1x als Option im Büro (nur, wenn hier sensible Akten/große Werte/Tresor o.ä. vorhanden sind) - 1x als Option in der Garage (Ecke zwischen der Wand zum Wohnhaus und der Außentür beim Bürofenster) - auf diese Option kann verzichtet werden, wenn sowohl die Garagentore als auch die Garagenfenster richtig abgesichert werden! Als Bewegungsmelder bitte sogenannte Dualmelder einplanen, diese verfügen sowohl über die bekannte Passivinfrarottechnik ("PIR", reagiert auf Wärmestrahlung) als auch über einen (aktiv sendenden) Mikrowellenteil, der unabhängig von Temperaturänderungen auf Bewegungen reagiert - diese Dualmelder kombinieren die jeweiligen Vorteile beider Prinzipien, ohne deren Nachteile zu übernehmen. Der Mehrpreis zu reinen PIR-Meldern ist mittlerweile zu vernachlässigen tutrock schrieb:Desweiteren wollen wir auf jeden fall ein GSM Modul installierenAls zweiter Übertragungsweg eine gute Idee, aber die Hauptalarmierungsmethode sollte aufgrund der schlechteren Angreifbarkeit immer ein Festnetzanschluss sein (Stichwort Jamming, darüber gibt es ein eigenes Thema hier im Forum) tutrock schrieb:und 2 "Codeschlösser" eins bei der Eingangstür und eins bei der Garage.Da hast du noch ein "Codeschloss" (besser "Bedienteil") vergessen, nämlich das im elterlichen Schlafzimmer! Wenn mich nachts die Sirenen aus dem Schlaf reißen, möchte ich nicht erst (womöglich noch am Einbrecher vorbei) bis zum nächsten Bedienteil laufen müssen, um zu sehen, wo jetzt gerade was los ist... ![]() tutrock schrieb:Anbei hab ich euch mal eine Skizze vom EG und KG angehängt.Jau, alles richtig gemacht, so macht das richtig Spaß mit euch!!! tutrock schrieb:Was genau brauchen wir um eine brauchbare Alarmanlage zu installieren und was würde der Spass ca. KostenJetzt wird es bunt, Preise lasse ich erstmal außen vor: - Öffnungsmelder sind ja in den neuen Elementen vorhanden, also bleiben noch die Glasbruchsensoren, wenn benötigt/gewünscht. - 1 separate Stromkreiszuleitung für die Zentrale, ggf. mit eigenem FI-Schutzschalter! - 1 Stck. Zentrale mit genug Linien für einen ausreichenden Komfort, Anschlussmöglichkeit für mind. drei Bedienteile, eventuell mit Aufteilungsmöglichkeit auf 2 Bereiche (Garage und Wohnhaus) - 1 Stck. Wählgerät (kann auch in der Zentrale integriert sein), eventuell noch das zusätzliche GSM-Wählgerät - 3 Stck. Bedienteil (Garage, Eingangsflur EG und Elternschlafzimmer) - 1 Stck. Außensirene (besser zwei, eine davon nicht zugänglich z.B. im Dachüberstand, um den Trick mit Pudelmütze und Bauschaum zu verhindern) - 2 Stck. Innensirene (EG und KG), um die Bewohner sicher zu wecken und um dem Täter den Aufenthalt so unbequem wie möglich zu machen - diverse Unterputzverteiler (1x pro Fenster/Tür), mit Löt- oder noch besser LSA+Anschlussleisten (und das dazugehörige Anlegewerkzeug!) - ne Menge Strippen, ich habe jetzt allerdings wenig Lust, dein Haus anhand der Zeichnung zu "vermessen"... Vorzuziehen ist für Alarmanwendungen geschirmte Fernmelde- Installationsleitung vom Typ I-Y(St)Y 6x2x0,6, für die Bedienteile reicht im Allgemeinen ein 2x2x0,6 vom gleichen Typ, da die meisten Bedienteile über einen Busanschlussmit der Zentrale kommunizieren. Was Preise und in Frage kommende Systeme angeht, werde ich nochmal in mich gehen ;o) tutrock schrieb:Vielleicht habt ihr noch ein paar Tipps, Infos und Anregungen für uns.Na, aber hallo! Habt ihr euch Gedanken über Rauchmelder gemacht? Die sind in diversen Bundesländern mittlerweile (endlich!!!) vorgeschrieben. Im jetzigen Baufortschritt könnte man die mit in die Einbruchmeldeanlage mit integrieren, das erspart erstens den Batteriewechsel und zweitens sind die Rauchmelder dann mit in die Aufschaltung zum Wachschutz integriert - was nützt es, wenn die "normalen" Melder vor sich hinschreien, aber niemand hört es, weil gerade mal keiner von euch zu Hause ist?! tutrock schrieb:Wir würden uns sehr darüber freuen.Gern geschehen bei eurer guten Vorarbeit! tutrock schrieb:MFGAuch so und bis später, Olli Keine Haftung für Sach- oder Personenschäden. Die sach- und fachgerechte Umsetzung liegt beim Ausführenden. Alle gängigen Normen und Vorschriften sind zu beachten, sonst siehe Avatar... Bitte keine technischen Anfragen per Email oder PN stellen, sondern offen im Forum posten, danke! |
|||
|
09-01-2010, 23:27
Beitrag: #3
|
|||
|
|||
|
RE: Alarmanlage für Neubau
Anhand der Zeichnungen komme ich auf ca. 16 benötigte Linien, um einen vernünftigen Komfort und eine ausreichende "Feinheit" in der Melderaufteilung zu den Räumen zu bekommen.
Das wäre noch mit einer relativ günstigen Zentrale (ca. 300,- Euronen inkl. Wählgerät (für einen analogen Anschluss, bei ISDN nochmal ca. 300,- Tacken oben drauf) plus die Bedienteile mit je ca. 120-150,- Euronen) zu bewerkstelligen, das "böse Ende" folgt jetzt: Denn, nicht eingerechnet sind Sabotagelinie/n (mind. 1, besser wären aber ungefähr 4), sowie die eventuell benötigten Glasbruch- (7 bis 8 wären ein Traum, zur Not geht aber auch nur 1) und die ebenfalls optionalen Rauchmeldelinien, ich würde 8 Rauchmelder (verteilt auf 6 Linien) planen, um den (bei uns in S.-H.) gesetzlichen Mindestansprüchen zu genügen - besser wäre aber natürlich auch hier, jeden Raum (außer Küche und Badezimmer!) mit Rauchmeldern auszustatten, damit käme ich dann auf 19 oder 20 Melder in so bummelig 15 Linien, womit wir dann im "Endausbau" über ingesamt 43 Linien verfügen können müssten - bei der Baugröße bietet sich ja bald eine Busanlage an, bei der die konventionellen Kontakte über sogenannte Busmodule an der Zentrale angeschlossen werden - man braucht dann nur eine 2-paarige Leitung von Fenster zu Fenster ziehen, die Kommunikation mit den Meldern läuft dabei über Bus-Befehle und nicht wie bei einer konventionellen Zentrale über eine Stromänderung in den Linien. Ich hoffe, das wurde jetzt nicht zu technisch - wenn doch, sorry ![]() Das war nur meine Art zu sagen, dass das Projekt nicht mit irgendeiner kleinen "Baumarktanlage" zu realisieren wird... und deshalb wohl auch kein Schnäppchen werden wird. Also, gebt mal bitte Laut, was nun wirklich in etwa mit rein soll und was nicht, sonst machen genauere Vorplanungen wenig Sinn ;o) MfG, Olli Keine Haftung für Sach- oder Personenschäden. Die sach- und fachgerechte Umsetzung liegt beim Ausführenden. Alle gängigen Normen und Vorschriften sind zu beachten, sonst siehe Avatar... Bitte keine technischen Anfragen per Email oder PN stellen, sondern offen im Forum posten, danke! |
|||
|
10-01-2010, 16:04
Beitrag: #4
|
|||
|
|||
RE: Alarmanlage für Neubau
Ollik schrieb:Natürlich habe ich dazu noch einige Nachfragen:Pilzkopf ja, 5-fach-Schließung haben die glaub ich auch... muss ich mal nachschauen Ollik schrieb:- Die Öffnungskontakte sind dann also sogenannte Magnet- oder Reedkontakte, aber werden auch gleich Glasbruchsensoren mit eingebaut (sofern die Elemente denn fertig verglast geliefert werden und nicht erst nach dem Einbau vor Ort Ihre Scheiben bekommen)??? Glasbruchsensoren haben wir nicht, benötigen wir aber auch nicht. Die Alarmanlage dient in erster Linie, damit Claudia sich auch sicher im großen bösen Haus fühlt, wenn ich mal nicht da bin Außerdem waren uns die Kosten zu hoch. Ollik schrieb:Ich setze dann mal voraus, dass keine frei laufenden Haustiere wie Hund und Katze bei euch existieren (Fische im Aquarium stören eine Anlage nicht so wirklich), korrekt? Es gibt zwar angeblich haustierresistente Melder (bis ca. 45kg, glaube ich), aber ich habe bis heute noch nicht verstanden, wie es ein Bewegungsmelder hinkriegt, die Katze direkt vor ihm auf dem Schrank zu wiegenEs sind noch keine Haustiere vorhanden, aber es wird in der Zukunft ein Wachhund angeschaft, der allerdings sein Quartier im Garten erhält, bzw. auch ins Haus darf solange wir da sind, dh. solange die Alarmanlage nicht eingeschaltet ist. Ollik schrieb:Doch Spaß beiseite: wenn ich mir dann eure Zeichnungen so anschaue, komme ich auf 5 bis 7 Bewegungsmelder, die man wie folgt verteilen sollte: Aerobicraum: da würden wir eher keinen BM installieren, da die Fenster relativ schmal sind, dh. wenn die Fenster aufgehebelt werden, geht der Alarm los, wenn sie eingeschlagen werden und der Einbrecher sich durch die Fenster zwengen will, dann wünschen wir ihm viel spass... Im Aerobicraum wird es außerdem nicht viel zu holen geben, so dass er sich sowieso von dort aus weiter fortbewegen muss! Somit sehe ich einen BM eher direkt am Gang ... spricht was dagegen? (die rote Wand sind gemauerte 10er Zwischenwände) EG: Flur EG klingt interessant... wieviel grad kann so ein BM überschauen? reicht das um beide Gänge zu überblicken? Da die BM ja nur nochmal zusätzlich schützen sollen, falls jemand die Fenster und Türen ohne Alarm auszulösen überwindet dürfte das doch reichen, oder? Den in der Garage finde ich sinnvoll. Somit wären wir bei 3 BM für das Haus. Da wir ja kein Fort Knox bauen, halte ich das auch für vollkommen ausreichend. Auch wird bei uns eher weniger zu holen sein. Ollik schrieb:Als Bewegungsmelder bitte sogenannte Dualmelder einplanen, diese verfügen sowohl über die bekannte Passivinfrarottechnik ("PIR", reagiert auf Wärmestrahlung) als auch über einen (aktiv sendenden) Mikrowellenteil, der unabhängig von Temperaturänderungen auf Bewegungen reagiert - diese Dualmelder kombinieren die jeweiligen Vorteile beider Prinzipien, ohne deren Nachteile zu übernehmen. Der Mehrpreis zu reinen PIR-Meldern ist mittlerweile zu vernachlässigen ok, klingt gut Ollik schrieb:Als zweiter Übertragungsweg eine gute Idee, aber die Hauptalarmierungsmethode sollte aufgrund der schlechteren Angreifbarkeit immer ein Festnetzanschluss sein (Stichwort Jamming, darüber gibt es ein eigenes Thema hier im Forum) Eigentlich haben wir nicht vor uns einen Festnetzanschluss zuzulegen. Da unsere Handytarife so gut und günstig sind, benötigen wir kein Festnetz mehr. (Haben auch seid ca. 5 Jahren keins mehr) Aber da du inzwischen sicher bemerkt hast, dass uns eine einfache Variante der Sicherheit genügt, verstehst du das sicher auch Ollik schrieb:Da hast du noch ein "Codeschloss" (besser "Bedienteil") vergessen, nämlich das im elterlichen Schlafzimmer! Wenn mich nachts die Sirenen aus dem Schlaf reißen, möchte ich nicht erst (womöglich noch am Einbrecher vorbei) bis zum nächsten Bedienteil laufen müssen, um zu sehen, wo jetzt gerade was los ist...Ist eine Überlegung wert! Ollik schrieb:Jetzt wird es bunt, Preise lasse ich erstmal außen vor:Diese Aufstellung müssten wir jetzt wohl nochmal ein bisschen minimieren. Unterputzdosen haben wir schon vorbereitet. ich habe unter jedem Fenster eine Dose gesezt und die Kabeld der Alarmkontakte dort verlängern zu können. Teilweise habe ich aber auch 2 Fenster zusammengefasst in eine Dose... dürfte ja schätze ich egal sein, oder? Ollik schrieb:Na, aber hallo! Habt ihr euch Gedanken über Rauchmelder gemacht? Die sind in diversen Bundesländern mittlerweile (endlich!!!) vorgeschrieben. Im jetzigen Baufortschritt könnte man die mit in die Einbruchmeldeanlage mit integrieren, das erspart erstens den Batteriewechsel und zweitens sind die Rauchmelder dann mit in die Aufschaltung zum Wachschutz integriert - was nützt es, wenn die "normalen" Melder vor sich hinschreien, aber niemand hört es, weil gerade mal keiner von euch zu Hause ist?! Müssen zu unserer Schande gestehen, dass wir uns über die Rauchmelder noch gar keinen Kopf zerbrochen haben Was genau meinst du mit "in die Einbruchmeldeanlage mit integrieren? Das wenn die Anschlagen wir benachrichtigt werden? Danke nochmal für die tolle Beantwortung!! Ein paar Fragen hätte ich noch... du schreibst von Linien, meinst du damit die Kabel der Alarmanlage? Thema Busanlage ... muss ich dann bei jedem Fenster so ein Buskontakt installieren und dann alle mittels Kabel verbinden und nur noch ein Kabel zur Zentrale ziehen? Eine Frage hätte ich auch noch zur Zentrale... Kann man die so programmieren, dass wir auch nur die Fensterkontakte einschalten ohne die Bewegungsmelder, damit wir uns im Haus bewegen und trotzdem die Alarmanlage einschalten können? Wenn die Alarmanlage eingeschaltet ist und wir mit dem Auto in die Garage fahren wollen, dann würde doch theoretisch der Alarm durch den Bewegungsmelder ausgelöst, oder? Wie kann man dieses Problem am besten beseitigen? Mir fallen sicher noch mehr Fragen ein, aber ich glaube ich lass das erstmal so stehen Vielen Dank für die Hilfe! lg Jens & Claudia |
|||
|
10-01-2010, 18:41
Beitrag: #5
|
|||
|
|||
|
RE: Alarmanlage für Neubau
Hallo zusammen,
bin gerade bei mir mit der haussteuerung am "planen", aber alarm läuft bei mir schon, desewegen hier vielleicht kurz ein paar infos, ich hoffe das ist ok ! tutrock schrieb:Müssen zu unserer Schande gestehen, dass wir uns über die Rauchmelder noch gar keinen Kopf zerbrochen habenEinige Alarmanlagen können die Brandmelder mit einbinden, da habt Ihr nur EIN System für beides, anruf bei Brand ist auch sehr beruhigend ! ![]() Zitat:Ein paar Fragen hätte ich noch... du schreibst von Linien, meinst du damit die Kabel der Alarmanlage?Eine Linie ist ein "stromkreis", es können z.B. mehrere Fenster von einem raum etc. auch zusammengefasst werden (reihenschaltung) Zitat:Eine Frage hätte ich auch noch zur Zentrale... Kann man die so programmieren, dass wir auch nur die Fensterkontakte einschalten ohne die Bewegungsmelder, damit wir uns im Haus bewegen und trotzdem die Alarmanlage einschalten können?Das kann fast jede Anlage, extern oder intern scharf heisst das Zauberwort. Zitat:Wenn die Alarmanlage eingeschaltet ist und wir mit dem Auto in die Garage fahren wollen, dann würde doch theoretisch der Alarm durch den Bewegungsmelder ausgelöst, oder? Wie kann man dieses Problem am besten beseitigen? Entweder den Bewegungsmelder aus der Programierung rausnehmen (weiterer 3. Zustand, Auto ist ja weg !), oder besser die Anlage per Funkschalter von draußen ausschalten ( so mach ich das). Gruss itfeak |
|||
|
11-01-2010, 01:46
Beitrag: #6
|
|||
|
|||
|
RE: Alarmanlage für Neubau
Tach auch!
itfreak hat ja schon vieles vollkommen korrekt beantwortet, ich gebe trotzdem nochmal meinen Senf dazu ;o) tutrock schrieb:Glasbruchsensoren haben wir nicht, benötigen wir aber auch nicht.Ich würde mich aber an Claudias Stelle mit Glasbruchsensoren noch sicherer fühlen, aber die Entscheidungen trefft natürlich ihr ;o) tutrock schrieb:Außerdem waren uns die Kosten zu hoch.Das ist ein ganz anderes Thema, kann ich dann auch nachvollziehen, irgendwie muss man ja auch noch gegenan verdienen ;o) tutrock schrieb:Es sind noch keine Haustiere vorhanden, aber es wird in der Zukunft ein Wachhund angeschaft, der allerdings sein Quartier im Garten erhält, bzw. auch ins Haus darf solange wir da sind, dh. solange die Alarmanlage nicht eingeschaltet ist.Okay, dann ist das natürlich kein Problem. tutrock schrieb:Aerobicraum: da würden wir eher keinen BM installieren, da die Fenster relativ schmal sind, dh. wenn die Fenster aufgehebelt werden, geht der Alarm los, wenn sie eingeschlagen werden und der Einbrecher sich durch die Fenster zwengen will, dann wünschen wir ihm viel spass...Nö, dagegen spricht dann nichts, durch die schmalen Fenster lassen sich dann wohl auch kaum die Fitnessgeräte abtransportieren ;o) tutrock schrieb:Flur EG klingt interessant... wieviel grad kann so ein BM überschauen? reicht das um beide Gänge zu überblicken?Jau, das reicht - die Bewegungsmelder haben 85-90° Erfassungswinkel und die Gehäuse der BWM sind meist an den hinteren Ecken abgeschrägt, um sie direkt in Ecken montieren zu können. Die Entscheidung zu nur einem Melder im Flur EG wird erst dann zum Problem, wenn ihr die Zwischentür zwischen Haupteingangsflur und Schlafzimmer-/Bürobereich schließt. tutrock schrieb:Da die BM ja nur nochmal zusätzlich schützen sollen, falls jemand die Fenster und Türen ohne Alarm auszulösen überwindet dürfte das doch reichen, oder?Wenn in Wohnzimmer und Büro keine größeren Werte lagern, ist das dann ausreichend. tutrock schrieb:Den in der Garage finde ich sinnvoll. Somit wären wir bei 3 BM für das Haus.Bei offener Zwischentür im Flur EG ja, sonst halt insgesamt lieber 4 nehmen. tutrock schrieb:Da wir ja kein Fort Knox bauen, halte ich das auch für vollkommen ausreichend. Auch wird bei uns eher weniger zu holen sein.Wenn ihr all meinen Vorschlägen Folge leisten würdet, ist bei euch erstmal gar nichts mehr zu holen ;o) tutrock schrieb:Eigentlich haben wir nicht vor uns einen Festnetzanschluss zuzulegen.Okay, dann wohl doch eher das GSM-Modem, grins. tutrock schrieb:Aber da du inzwischen sicher bemerkt hast, dass uns eine einfache Variante der Sicherheit genügt, verstehst du das sicher auchNatürlich! Ich bin auch nicht davon ausgegangen, dass ihr alle Gedankengänge von mir übernehmen wolltet, aber wenigstens erwähnt wollte ich es mal haben ;o) tutrock schrieb:Diese Aufstellung müssten wir jetzt wohl nochmal ein bisschen minimieren.Okay, ich revidiere meine Liste wie folgt: - 1 separate Stromkreiszuleitung für die Zentrale, ggf. mit eigenem FI-Schutzschalter! Bleibt ein Muss, weil es einfach Sinn macht! Und ein Automat mehr kostet auch nicht die Welt ;o) - 1 Stck. Zentrale mit genug Linien für einen ausreichenden Komfort, Anschlussmöglichkeit für mind. drei Bedienteile, eventuell mit Aufteilungsmöglichkeit auf 2 Bereiche (Garage und Wohnhaus) Ich zähle nachher nochmal neu durch ;o) - 1 Stck. GSM-Wählgerät aus gegebenem Anlass halt - 2-3 Stck. Bedienteil (Garage, Eingangsflur EG und ggf. Elternschlafzimmer) Ich halte weiterhin alle drei Bedienteile für sinnvoll bis unverzichtbar, von Funksendern (z.B. Schlüsselanhänger o.ä.) halte ich nix - wer den geklaut kriegt und dem Haus zuordnen kann, hat leichtes Spiel... - 1 Stck. Außensirene (besser zwei, eine davon nicht zugänglich z.B. im Dachüberstand, um den Trick mit Pudelmütze und Bauschaum zu verhindern) Aufgrund einer Aufschaltung kann man auf die zweite Sirene auch verzichten, wenn man die erste dann auch entsprechend hoch montiert, dass eben nicht jeder einfach so herankommt (mind. 3m über möglichen Standflächen). - 2 Stck. Innensirene (EG und KG), um die Bewohner sicher zu wecken und um dem Täter den Aufenthalt so unbequem wie möglich zu machen Okay, eine tut es auch, ich würde dann das EG (Nähe Treppenhaus) vorziehen. - diverse Unterputzverteiler (1x pro Fenster/Tür), mit Löt- oder noch besser LSA+Anschlussleisten (und das dazugehörige Anlegewerkzeug!) Wenn die Melderstrippen lang genug sind, kann man natürlich auch nebeneinander liegende Fester/Türen zusammenfassen. - Vorzuziehen ist für Alarmanwendungen geschirmte Fernmelde- Installationsleitung vom Typ I-Y(St)Y 6x2x0,6, für die Bedienteile reicht im Allgemeinen ein 2x2x0,6 vom gleichen Typ, da die meisten Bedienteile über einen Busanschluss mit der Zentrale kommunizieren. Dabei bleibe ich - ich würde nichts anderes einziehen... Hmm, die Liste ist jetzt aber leider trotzdem noch nicht viel kürzer geworden :o( tutrock schrieb:Unterputzdosen haben wir schon vorbereitet. ich habe unter jedem Fenster eine Dose gesezt und die Kabel der Alarmkontakte dort verlängern zu können. Teilweise habe ich aber auch 2 Fenster zusammengefasst in eine Dose... dürfte ja schätze ich egal sein, oder?Jau, das ist kein Problem! Allerdings werden in den Dosen nicht nur die Melderleitungen verlängert, dort wird auch die Linienzugehörigkeit der einzelnen Melderkontakte festgelegt (zu dem Begriff "Linien" komme ich noch). tutrock schrieb:Müssen zu unserer Schande gestehen, dass wir uns über die Rauchmelder noch gar keinen Kopf zerbrochen haben.Kein Thema, dafür hast ja uns ;o) tutrock schrieb:Was genau meinst du mit "in die Einbruchmeldeanlage mit integrieren? Das wenn die Anschlagen wir benachrichtigt werden?Genau das (hatte itfreak ja auch schon erklärt)! Die Rauchmelder hängen dabei kabelmäßig wie ein normaler Einbruchkontakt an der gleichen Zentrale, nur in der Programmierung der Zentrale werden die Brandmelder dann als Feuerlinie programmiert (also 24 Std./Tag aktiv, egal ob die Anlage scharf oder unscharf ist usw.). tutrock schrieb:Danke nochmal für die tolle Beantwortung!!Freut mich, dass ich euch mit meiner Riesenliste nicht vergraulen konnte! tutrock schrieb:Ein paar Fragen hätte ich noch... du schreibst von Linien, meinst du damit die Kabel der Alarmanlage?Auch dazu hatte itfreak ja schon Richtiges geschrieben (danke dafür, itfreak!), eine Linie (oder Zone) ist eine (leitungsmäßige) Zusammenfassung von einzelnen Meldern (z.B. alle Magnetkontakte eines Raumes oder alle Glasbruchmelder im Haus), das spart Leitungen (oder besser: Adern in einer Leitung, d.h. man könnte dünnere Leitungen mit weniger Adern verlegen oder anders herum: in einer gleich starken Leitungen mehrere Linien führen). Aber um den Reservegedanken zu beachten (vielleicht wollt ihr ja doch irgendwann mal Glasbruchmelder oder Räume werden per Zwischenwand aufgeteilt), legt man eigentlich trotzdem immer das o.g. 6x2x0,6. tutrock schrieb:Thema Busanlage ... muss ich dann bei jedem Fenster so ein Buskontakt installieren und dann alle mittels Kabel verbinden und nur noch ein Kabel zur Zentrale ziehen?Jein! Die Leitung beginnt (wie auch bei der konventionellen Verdrahtung) in der Zentrale und läuft dann als 2-paarige Leitung (trotzdem 6-paarige Leitungen ziehen wegen der Reserve, die restlichen 4 Paare bleiben dann erstmal ungenutzt) von Fenster zu Fenster. Statt der normalen Verteiler werden dann (adressierbare) Busmodule eingesetzt, an denen sowohl der Bus als auch die Melderleitungen angeschlossen werden. Die Öffnung eines Fensters beispielsweise wird dann durch Unterbrechung des Stromkreises (eben der Linie oder Zone) nur bis zum Busmodul und nicht mehr bis zur Zentrale direkt übertragen. Das Busmodul meldet dann per Busbefehl (kurze Elektronikimpulse auf der Busleitung) unter Nennung seiner Adresse der Zentrale, dass das Fenster XY (Linien- oder Zonennummer) geöffnet wurde. Wird bei Anlagen mit großer Linienanzahl sinnvoll, weil man dort damit eine Menge Leitungen einsparen kann. tutrock schrieb:Eine Frage hätte ich auch noch zur Zentrale... Kann man die so programmieren, dass wir auch nur die Fensterkontakte einschalten ohne die Bewegungsmelder, damit wir uns im Haus bewegen und trotzdem die Alarmanlage einschalten können?Klar, das können mittlerweile wirklich nahezu alle Anlagen, auch die kleinen. Wie itfreak schon schrieb, heißt das Zauberwort "intern scharf" (Personen anwesend, Außenhautsicherung aktiv, BWMs werden ignoriert) oder "extern scharf" (niemand im gesicherten Bereich, auch die BWMs sind aktiv). Man kann natürlich auch jede andere Meldelinie als "interne Linie" programmieren, z.B. den Öffnungsmelder der Zwischentür Haus/Garage, um diese bei intern scharfer Anlage trotzdem ohne Alarm benutzen kann. tutrock schrieb:Wenn die Alarmanlage eingeschaltet ist und wir mit dem Auto in die Garage fahren wollen, dann würde doch theoretisch der Alarm durch den Bewegungsmelder ausgelöst, oder? Wie kann man dieses Problem am besten beseitigen?Hier würde ich mit einer verzögertem Linie arbeiten - die Garagentore bzw. der Bewegungsmelder reagieren und melden dann zwar trotzdem sofort an die Zentrale, aber diese verzögert einen Alarm um eine einstellbare Zeit (in der die Bedienteile piepsen, um ein Vergessen der rechtzeitigen Unscharfschaltung zu verhindern), von den Funkdingern halte ich wie gesagt nicht viel... Eine Verzögerung stellt zwar eine gewisse Komforteinbuße dar (weil ich nicht erst meine Sachen aus dem Auto holen kann und dann das Haus betrete, sondern parken, dann umgehend unscharf schalten muss und dann erst meine Sachen aus dem Wagen holen kann - sonst ist die Verzögerungszeit abgelaufen und ich habe mir selbst einen Alarm produziert! Die Zeit muss nämlich relativ kurz bemessen sein, da ja auch ein eventueller Einbrecher dieselbe Zeit "zur Verfügung gestellt bekommt"... ;o) Und wenn Funksender zum Deaktivieren, dann bitte die Garage als separaten Sicherungsbereich planen, der alleine durch den Funksender deaktiviert wird. Dann hat man keinen Zeitdruck, kann in Ruhe seinen Kram aus dem Auto sammeln und muss dann erst unmittelbar vor Begehen der Zwischentür zum Haus die Gesamtanlage über das Bedienteil unscharf schalten. Die Bedienteile zeigen dir übrigens den Status der Anlage auch im Klartext an - nicht nur scharf oder unscharf, sondern auch welche Linie aktuell ausgelöst ist und welche nicht. Anders formuliert: du siehst in deutschem Klartext z.B. welches Fenster noch offen steht - gerade bei einer Scharfschaltverhinderung vom System aufgrund eben dieses offenen Fensters wird das recht wichtig (leuchtet im Display nur die dritte Lampe von oben, muss ich erst überlegen, welcher Raum oder welches Fenster sich dahinter verbergen könnte - steht aber im Display "Fenster Küche" kann ich doch ohne langes Überlegen in die richtige Richtung latschen und das Fenster schließen). Diese genauen Angaben, welche Linie/Fenster/Tür denn nun ausgelöst hat, bedingen eben auch die relativ hohe Anzahl von programmierbaren Linien - hat die Zentrale nur 4 davon, steht im Display wahrscheinlich nur "Fenster EG" und ich muss im gesamten EG nach einem offenen Fenster suchen. Hat die Zentrale aber eine ausreichend hohe Anzahl von Linien, kann man viel feiner aufteilen, z.B. eben raummäßig oder sogar innerhalb von Räumen, beispielsweise "Wohnzimmer Terrassentür" und "Wohnzimmer Fenster". Inwieweit das möglich ist und/oder Sinn macht, hängt von den Räumlichkeiten, dem Willen des Nutzers (und des Finanzierenden!) sowie den Leitungskapazitäten (wenn denn Busanlage benutzt wird) ab. tutrock schrieb:Mir fallen sicher noch mehr Fragen ein, aber ich glaube ich lass das erstmal so stehenWenn die nächsten Frage auftauchen (wovon ich ausgehe, ist halt ein recht komplexes Thema), immer raus damit, dafür machen wir das ja hier ;o) MfG, Olli Keine Haftung für Sach- oder Personenschäden. Die sach- und fachgerechte Umsetzung liegt beim Ausführenden. Alle gängigen Normen und Vorschriften sind zu beachten, sonst siehe Avatar... Bitte keine technischen Anfragen per Email oder PN stellen, sondern offen im Forum posten, danke! |
|||
|
11-01-2010, 08:00
Beitrag: #7
|
|||
|
|||
|
RE: Alarmanlage für Neubau
ich misch mich auch kurz nochmal ein
![]() wenn ich die alarmierung über gsm ins auge fasst , würde ich zu einen system greifen wobei das gsm wählgerät, bzw modul, system intern mit drinnen hängt.es hat folgende vorteile: es wär möglich auch sms senden zulassen, mit der angabe was, wo und wann ![]() und bei manch anlagen kann man so auch stoppen z.b. : wenn alarm ausgelöst wurde das die rufe und sms mit der unscharf schaltung aufhört. mfg |
|||
|
11-01-2010, 08:02
Beitrag: #8
|
|||
|
|||
|
RE: Alarmanlage für Neubau
eins noch
![]() mann könnte sich die linien sparen wenn man sich eine anlage nimmt die widerstandsüberwacht ;P da solchen anlagen ist die sabotagelinie in der normalen linie mit inbegriffen, die anlage kennt dieses über den wert (4,7k ohm alles ok und 9,4k ohm) vielleicht wäre für euch die CSX oder NSX zentrale von aritech interressant |
|||
|
|
Benutzer, die gerade dieses Thema anschauen: 1 Gast/Gäste
Suche
Mitglieder
Kalender
Hilfe





