|
Position BWM
|
|
02-01-2018, 14:37
Beitrag: #1
|
|||
|
|||
|
Position BWM
Hallo Zusammen,
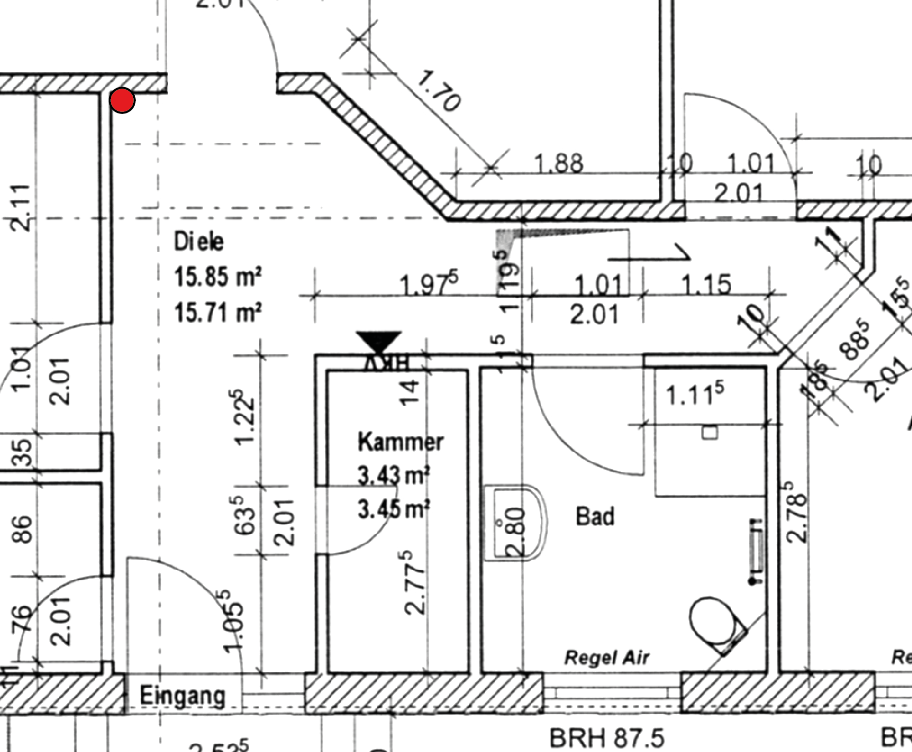
bin gerade dabei meine Öffnungsmelder und BWM zu installieren. Bin mir bei der Positionierung des Bewegungsmelders nicht ganz sicher, da unser Flur recht verwinkelt ist. Ich habe mal die geplante Position eingezeichnet. Macht das Sinn? Montiert werden soll ein Lupusec Dual Way Melder. (Hund in Planung). (Anmerkung Eingangstür: Hat Seitenteil mit satiniertem Glas) Des weiteren möchte ich den Raum, in dem die Zentrale montiert ist, zusätzlich mit einem BWM absichern. In diesem Raum befindet sich auch die Gastherme. Würde hier ein normaler PIR reichen, oder sind Fehlalarme vorprogrammiert. Vielen Dank vorab Gruß Sebastian |
|||
|
|
| Möglicherweise verwandte Themen... | |||||
| Thema: | Verfasser | Antworten: | Ansichten: | Letzter Beitrag | |
| BWM FU 8350 löst bei Hund Alarm aus | acel911 | 2 | 4.508 |
02-06-2020 19:11 Letzter Beitrag: megagramm |
|
| BWM und Heizungsrohre | Max Imal | 5 | 8.184 |
29-01-2020 10:55 Letzter Beitrag: Max Imal |
|
| Anschluss BWM (DEOL) an Terxon MX | tobievo | 5 | 5.956 |
22-04-2017 14:34 Letzter Beitrag: tobievo |
|
Benutzer, die gerade dieses Thema anschauen: 1 Gast/Gäste
Suche
Mitglieder
Kalender
Hilfe



