|
Abus terxon mx az 4150 dual serie Schaltung
|
|
03-06-2021, 19:32
Beitrag: #1
|
|||
|
|||
|
Abus terxon mx az 4150 dual serie Schaltung
Guten Abend
Ich weiß dass ich wahrscheinlich wieder Reaktionen bekommen werde das hatten wir schon und so weiter und so fort aber ich bin langsam verzweifelt. Ich versuche zwei Melder in Serie zu installieren für meine Abus Alarmzentrale. Aber ich habe immer wieder sabotage . Ich habe so ein bisschen alle Schaltpläne angesehen und versucht irgendwo mache ich einen Fehler ich weiß aber nicht wo. Ich bitte euch mich zu helfen. |
|||
|
03-06-2021, 19:39
Beitrag: #2
|
|||
|
|||
|
RE: Abus terxon mx az 4150 dual serie Schaltung
Wie schließt du sie denn an? Widerstandsverdrahtung? NC?
(Pronomen: er/ihm) |
|||
|
03-06-2021, 19:43
Beitrag: #3
|
|||
|
|||
|
RE: Abus terxon mx az 4150 dual serie Schaltung
Mit Widerstand 4,7 alarm kontakt und 2,2 sabotage
|
|||
|
03-06-2021, 19:45
Beitrag: #4
|
|||
|
|||
|
RE: Abus terxon mx az 4150 dual serie Schaltung
Und wie ist es bisher verkabelt, kannst du das aufzeichnen?
(Pronomen: er/ihm) |
|||
|
03-06-2021, 19:55
Beitrag: #5
|
|||
|
|||
|
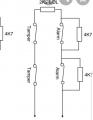
RE: Abus terxon mx az 4150 dual serie Schaltung
Ja diese hab ich zu letzten versucht
|
|||
|
03-06-2021, 20:09
Beitrag: #6
|
|||
|
|||
|
RE: Abus terxon mx az 4150 dual serie Schaltung
Naja, dann ist entweder die Anlage misskonfiguriert oder du hast was falsch angeschlossen. Schau ob die Linie auch wirklich auf den passenden Typ und die passenden Widerstandswerte eingestellt ist in der Zentrale und wenn ja, musst du wohl nen Errichter kommen lassen, wenn es daran scheitert einen Schaltplan zu lesen oder aufzuzeichnen, wie du es tatsächlich verkabelt hast.
(Pronomen: er/ihm) |
|||
|
03-06-2021, 20:10
Beitrag: #7
|
|||
|
|||
|
RE: Abus terxon mx az 4150 dual serie Schaltung
Danke
|
|||
|
03-06-2021, 20:42
Beitrag: #8
|
|||
|
|||
|
RE: Abus terxon mx az 4150 dual serie Schaltung
Hallo
Generell soll nur ein 4k7 Widerstand verwendet werden, wenn mehrere Alarmkontakte in Reihe geschalten sind dann muss der 4k7 parallel zu allen Alarmkontakten geschaltet werden. Nur, wenn es so wie in der Zeichnung verdrahtet ist, dann sollte es trotzdem zumindest dann einen Einbruchalarm geben, wenn nur einer der beiden Alarmkontakte geöffnet wird. Mit Einstellung 199 kann dir die MX den aktuellen Widerstandswert am Bediengerät ausgeben. Damit kannst du deine Beschaltung überprüfen. Wenn alle Kontakte zu sind sollten 2k2 anliegen, ist ein Alarmkontakt offen dann sollten 2k2+4k7=6k9 anliegen. Ist einer der Sabotage offen dann ist die gesamte Kontaktschleife offen. MfG Sektionschef Abus Terxon SX+SG1800+BW8010+Monacor AS362 Jablotron Oasis80(JA-84)+JA-83M+JA-83P+JA-80PB+JA-81F+JA-80L Instar IN-5907HD |
|||
|
03-06-2021, 21:55
Beitrag: #9
|
|||
|
|||
|
RE: Abus terxon mx az 4150 dual serie Schaltung
Super das werde ich versuchen danke
|
|||
|
|
| Möglicherweise verwandte Themen... | |||||
| Thema: | Verfasser | Antworten: | Ansichten: | Letzter Beitrag | |
| Problem abus trexon AZ 4150 | Michael0000 | 10 | 5.357 |
14-05-2021 17:38 Letzter Beitrag: funkistnichtalles |
|
| Strahlung Dual Bewegungsmelder | SecvestUser | 20 | 20.482 |
09-08-2019 00:32 Letzter Beitrag: noby2104 |
|
| Falschalarme bei Dual-Bewegungsmeldern | knobel | 4 | 7.102 |
17-01-2019 14:25 Letzter Beitrag: knobel |
|
| PIR Melder = Dual Melder? / Kaminofen???? | Lino12 | 4 | 7.038 |
03-12-2015 16:11 Letzter Beitrag: Alarmservice-Hamburg |
|
| Dual Bewegungsmelder mit Dämmerungsschalter | Wolfgang | 4 | 6.074 |
12-10-2014 20:02 Letzter Beitrag: Wolfgang |
|
Benutzer, die gerade dieses Thema anschauen: 1 Gast/Gäste
Suche
Mitglieder
Kalender
Hilfe



