Hallo zusammen,
ich habe eine gute alte "effeff" Alarmzentrale vom Typ 50-m5 und seit Kurzem ein Innenbedienteil (012624), das ich damit verbinden möchte. Leider fehlt mir der Anschlussplan des Innenbedienteils. Hat zufällig jemand den Anschlussplan parat oder kann mir beschreiben, wie das Teil anzuschließen ist?
Vielen Dank im Voraus.
Martin
Sofern Du die
gute alte Black-Box hast, sind die PINs 26 (AUS), 27 (EIN) und 28 (+UB) abzugreifen. Bei der Grau-Box sind die PINs von ST7 (nummeriert von oben) maßgebend: 1 = +UB, 2 = EIN, 3 = AUS.
Die Anschlüsse am Internbedienteil sollten somit selbsterklärend sein, denn es ist ja nur ein Schlüsselschalter

Danke für die schnelle Antwort. Ich hoffe, dass ich die richtige Artikelnr. rausgesucht habe. Es handelt sich um ein Bedienteil mit Schlüsselschalter, ein/aus-Knopf (für Internscharf) und diverse LEDs. Sehen kann man das Teil z. B. hier (wobei der an/aus Knopf fehlt):
https://www.igs-hagen.de/produktsuche/pr...-ws-012624
Demnach gibt es also ein paar mehr Lötstellen, und das
ist für mich nicht selbsterklärend
Viele Grüße
Martin
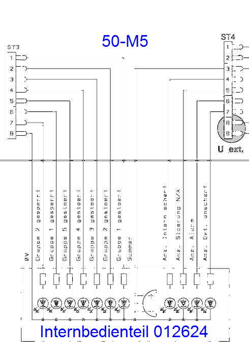
Okay, dann geht es mit diesen Infos weiter:
Anschlussbelegung Graue Box
ST3 von oben
PIN 1 = Gruppe 1 gestört
PIN 2 = Gruppe 2 gestört
PIN 3 = Gruppe 3 gestört
PIN 4 = Gruppe 4 gestört
PIN 5 = Gruppe 5 gestört
PIN 6 = Gruppe 1 gesperrt
PIN 7 = Gruppe 2 gesperrt
PIN 8 = 0V
ST4 von oben
PIN 1 =
PIN 2 =
PIN 3 = Summer +
PIN 4 = Anzeige "Intern scharf"
PIN 5 = Anzeige "Störung N/A"
PIN 6 = Anzeige "Alarm"
PIN 7 = Anzeige "Extern Unscharf"
Anschlussbelegung Black Box
PIN 14 = Gruppe 1 gestört
PIN 15 = Gruppe 2 gestört
PIN 16 = Gruppe 3 gestört
PIN 17 = Gruppe 4 gestört
PIN 18 = Gruppe 5 gestört
PIN 12 = Gruppe 1 gesperrt
PIN 13 = Gruppe 2 gesperrt
PIN 7 = 0V
PIN 25 = Summer +
PIN 19 = Anzeige "Intern scharf"
PIN 20 = Anzeige "Störung N/A"
PIN 21 = Anzeige "Alarm"
PIN 22 = Anzeige "Extern Unscharf"
Damit sollte es funktionieren.

Okay, bei mir ist es die graue Zentrale.
Aber wie erfolgt der Anschluss am Innenbedienteil?
Ich kenne nur die 50-M5. Dieses Bedienteil hab ich noch nicht gesehen. Und mit der Qualität/Auflösung Deines gesetzten Links muss man mehr rätseln statt sehen.
Vielleicht stellst Du mal ein Foto vom Innenleben dieses Zubehörteils hier ein. Ansonsten muss man wohl die Wege irgendwelcher Anschlusspins zu den LEDs (die ja irgendwie auf der Außenseite eine Beschriftung haben) nachvollziehen. Das minimiert dann - was die übrigen PINs betrifft - schon mal die Möglichkeiten
Das Teil stammt wohl noch aus Effeff-Zeiten. Die wurden vor vielen Jahren von Esser übernommen, dann kam Esser zu Novar und Novar schließlich zu Honeywell. Über die Jahre/Jahrzehnte geht einiges an Wissen verloren und Internet bzw. PDF waren damals unbekannte Begriffe.
Wenn Teile selten Verwendung fanden, gibt es noch seltener irgendwelche Unterlagen. Da muss man Glück haben und jemand macht sich die Mühe und schaut in alten papiergebundenen Unterlagen nach, wobei derjenige - wenn er es beruflich macht - eher in der aufzuwendenden Zeit ein Angebot erarbeitet, da dies ggfls. neue Aufträge beschert.
Da ich keine weitere Infos habe, bin ich ohne Foto mit meinem Latein am Ende

Ja, das Internet habe ich schon vergeblich durchsucht. Ich poste die Tage mal ein Bild vom Innenleben, habe aktuell keinen Zugriff darauf, da im Urlaub.
Dennoch danke für die Mühen!
Viele Grüße
Martin
@Herki:
Was Du hier eingestellt hast, ist der Gesamtanschlußplan
der 50-M5. Wie und wo die Adern am
Internbedienteil (0)1264 selbst aufgelegt werden, ist damit nicht sicher

geklärt, wobei Du noch die Steuerung (EIN-AUS)

siehe nächste Seite (31) des Gesamtanschlußplans (oben) vergessen hast.
Und genau aus diesem Grunde hatte ich ein Foto haben wollen

Ansteuerung vergessen?
Der OP hat zwar bisher nicht mitgeteilt was ihm alles an Dokumentation vorliegt, aber wenn er schon an einer Zentrale arbeitet, setze ich voraus das er über die elektrischen Grundkenntnissse verfügt und somit eine einfache Anschaltung eines Bedienteils (Schaltung: Scharf/Unscharf) ausmessen und somit selbst erkennen kann. Sind doch nur drei Anschlüsse.
Was sollte zudem für den OP ein Problem darstellen und dem Bedienteil statisch 0V
(Anschlußpunkt ist auf der Platine beschriftet) zu verpassen und dynamisch die einzelnen LEDs mit +12V anzusteuern? Dann kann er sich gar sofort eine eigene Doku dazu erstellen.
Mit den beiden Grafiken kann jemand mit elektrotechnischen Grundkenntnissen den korrekten Anschluiss des 012624 an die 50-M5 ausführen.
Ja ich weiß, man kann elektrotechnische Probleme
(unnötig) hoch schaukeln *tztztz
Nachtrag:
@Martina_H
Du hättest auch im
diesem Beitrag auch den ST-7 mit aufführen können. Dann wäre die Auflistung für den OP vollständig gewesen.

Hallo zusammen,
danke für die Beiträge. Anbei die Bilder vom Innenleben des Bedienteils, fotografiert von beiden Seiten. Eine Dokumentation für das Internbedienteil liegt mir leider nicht vor.
Ja, prinzipiell könnte man zur Not wohl die einzelnen Kontakte durchmessen, wobei ich mir das natürlich auch gerne sparen würde, wenn jemand die Anschlüsse auch so zuordnen kann
Ich habe zwar elektrotechnische Grundkenntnisse, mehr aber auch nicht. Der Fachmann (Elektriker) meines Vertrauens möchte an die Anlage gar nicht ran, da er sie damals (vor Jahrzehnten) nicht selbst erbaut hat und daher lieber "die Finger von lässt".
Viele Grüße
Martin
Ich würde mal fast behaupten, das Bedienteil ist nicht für die 50-M5, sondern für die 561-M5/M8/M10 Zentralen, denn dort erfolgt die Bedienfreigabe mit Schlüssel und dann wird mittels Taste Ein oder Aus geschaltet. Die 50M5 hat ja wie fast alle anderen alten EffEff Zentralen nur den Schlüssel für Ein oder Aus.
Ich guck morgen mal in die Doku aufm Notebook.
Denke, damit hast du recht, da würde auch ein Schaltkontakt laut Anschlussplan von @Herki fehlen.
In Beitrag #3 hatte der Fragesteller eine Bedieneinheit verlinkt, die mit wesentlich mehr LEDs (passend für die 5 Linien) ausgestattet war.
Sicherlich könnte man durch das Bedienteil die Anlage scharfschalten, aber alleine die Tatsache, dass es nur eine optische Anzeige (für Sammelalarm) gibt, wäre für mich schon ein Kriterium, von der Verwendung Abstand zu nehmen.
Wobei mir noch der Gedanke

kommt, dass das Teil eher passend für 3-Linien-Anlagen (effeff GA-3) sein könnte und diese schon vordefiniert für Sabotage, Alarm und Überfall waren. Das scheint mir am ehesten zutreffend zu sein.
Aber selbst die abgesetzten Bedienteile zur GA-3(B) sahen anders aus, wenn man den damaligen Errichterunterlagen Glauben schenken darf.
Auf dem Foto (20230601_205645.jpg) ist mittig auf der Platine auch ein Schriftzug, der zumindest nicht zu effeff gehört, weshalb ich mit meinem geringen Wissen mal infrage stelle, ob das Teil überhaupt das ist, für was es hier ausgegeben wird.
Man findet alles, wenn man denn sucht

:
[img]
![[Bild: Passende-Bedienteile-effeff-50-M5-und-561-M8.jpg]](https://i.ibb.co/tKt0D8t/Passende-Bedienteile-effeff-50-M5-und-561-M8.jpg)
[/img]
Hiernach stellt das im Besitz des Fragestellers befindliche Bedienfeld lediglich ein Teil von einem Bedienteil dar, was zudem passend für eine 561-M8 ist.
Und damit er weiß, wie das zu seiner 50-M5 passende Bedienteil aussieht, gibt es auch hiervon ein Foto.

Mit den entsprechenden elektrotechnischen Kenntnissen lässt sich auch sein Bedienteil an die 50-M5 anschließen. Die Lösung gibt es aber nicht für Lau

Na klasse, dann habe ich also das falsche Bedienteil...
Dennoch danke für eure Unterstützung!
Viele Grüße
Martin
(04-06-2023 07:39)martin2709 schrieb: [ -> ]Na klasse, dann habe ich also das falsche Bedienteil...
Wenn Du tatsächlich das Bedienteil 012624 (wie in der Betreffzeile von Dir geschrieben) hast, dann ist dies laut Errichteranleitung problemlos an die 50-M5 anschließbar. Wenn kein Anschlußplan des 012624 vorliegt, habe ich Dir den hierzu Lösungsweg aufgezeigt.