|
Sperrelment E4.3 Tresor
|
|
19-11-2020, 16:52
Beitrag: #1
|
|||
|
|||
|
Sperrelment E4.3 Tresor
Hallo zusammen,
Ich bin grade dabei eine alte 256 gegen eine Secure zu ersetzen. Ich habe hier einen Tresor mit einem E4.3 Sperrelement und muss das jetzt an eine IK3 Auswerteeinheit. Ich finde dazu leider kaum anschlusspläne Und brauche mal eure Hilfe. Ich brauche nur eine Sperrelement Funktion. Sprich zahlendrehrad gesperrt wenn EMA scharf. Kann jemand helfen ? Projektleiter Einbruch |
|||
|
19-11-2020, 17:23
Beitrag: #2
|
|||
|
|||
|
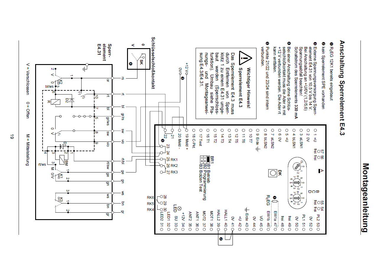
RE: Sperrelment E4.3 Tresor
genügt das?
Satel Videotutorials: https://www.youtube.com/c/aslademcogmbh |
|||
|
19-11-2020, 18:05
Beitrag: #3
|
|||
|
|||
RE: Sperrelment E4.3 Tresor
(19-11-2020 17:23)Animal schrieb: genügt das? Für das komplette wäre ich dir dankbar Ich schreib dir ne Nachricht
Projektleiter Einbruch |
|||
|
19-11-2020, 19:27
Beitrag: #4
|
|||
|
|||
RE: Sperrelment E4.3 Tresor
(19-11-2020 18:05)Stirilium schrieb: Für das komplette wäre ich dir dankbar Wenn du Google bemühst, wirst du die komplette Anleitung zum kostenlosen Download finden. Ein wenig Mühe sollte man sich schon selbst machen. Viele Fehler sind RTFM Fehler - Read The Fucking Manual Telenot, Daitem, UTC, Hikvision AxPro, Lupus, AVS www.peteralarm.de |
|||
|
19-11-2020, 19:33
Beitrag: #5
|
|||
|
|||
RE: Sperrelment E4.3 Tresor
(19-11-2020 19:27)peteralarm schrieb:(19-11-2020 18:05)Stirilium schrieb: Für das komplette wäre ich dir dankbar Ich bin des googelns mächtig. Die Anleitung zum E4.4 findet man schnell. Aber die 4.3 nicht. Außerdem ist das doch hier eig ein Forum und kein Wettbewerb oder nicht .? Projektleiter Einbruch |
|||
|
19-11-2020, 20:38
Beitrag: #6
|
|||
|
|||
RE: Sperrelment E4.3 Tresor
(19-11-2020 19:33)Stirilium schrieb: Ich bin des googelns mächtig. Die Anleitung zum E4.4 findet man schnell. Aber die 4.3 nicht. Hmmmm scheint mir jetzt nicht so, wenn du richtig suchen würdest, findest du gleich auf der ersten Seite bei Google das 4.3 als kostenloses pdf. und auch eine exakte Anleitung warum und wie man in bestimmten Fällen aus dem 4.3 ein 4.31 machen kann/ muss.Als "Projektleiter Einbruch" sollte das für dich schließlich kein Problem sein, oder findest du es einfach nur mühsamer selbst zu lesen als andere lesen zu lassen?
Viele Fehler sind RTFM Fehler - Read The Fucking Manual Telenot, Daitem, UTC, Hikvision AxPro, Lupus, AVS www.peteralarm.de |
|||
|
19-11-2020, 21:15
Beitrag: #7
|
|||
|
|||
(19-11-2020 20:38)peteralarm schrieb:(19-11-2020 19:33)Stirilium schrieb: Ich bin des googelns mächtig. Die Anleitung zum E4.4 findet man schnell. Aber die 4.3 nicht. Tatsächlich muss ich dir recht geben. Ich war direkt im Objekt und konnte nur mit dem Handy suchen. Da wurde mir das nicht richtig angezeigt. Ich habe was ich brauche. Vielen Dank. Und nein generell suche ich selbst. Es musste eben nur schnell gehen. Wie es halt mal so ist. Danke euch
Projektleiter Einbruch |
|||
|
19-11-2020, 22:07
Beitrag: #8
|
|||
|
|||
|
RE: Sperrelment E4.3 Tresor
Na denn, Hauptsache du hast gefunden, was du brauchst.
Viele Fehler sind RTFM Fehler - Read The Fucking Manual Telenot, Daitem, UTC, Hikvision AxPro, Lupus, AVS www.peteralarm.de |
|||
|
|
Benutzer, die gerade dieses Thema anschauen:
Suche
Mitglieder
Kalender
Hilfe





scheint mir jetzt nicht so, wenn du richtig suchen würdest, findest du gleich auf der ersten Seite bei Google das 4.3 als kostenloses pdf. und auch eine exakte Anleitung warum und wie man in bestimmten Fällen aus dem 4.3 ein 4.31 machen kann/ muss.