|
Entscheidungshilfe EMA (Kabel)
|
|
05-04-2013, 02:05
Beitrag: #1
|
|||
|
|||
|
Entscheidungshilfe EMA (Kabel)
Nach intensivem lesen hier im Forum steht die Entscheidung fest, dass in unser Haus eine Alarmanlage kommt.
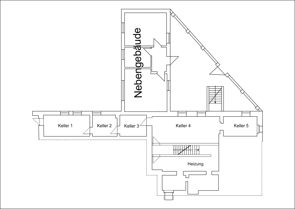
Ich habe in den Anhang mal die Grundrisse vom Keller und Erdgeschoss angehängt. Da wir einen Haushund haben, will ich vorerst nur die Außenhaut absichern, also Kontakte in alle Fenster und Türen. Lediglich im Keller wollte ich Bewegungsmelder als Fallen installieren (in diesen Bereich kommt der Hund nicht). Das Erdgeschoss ist nur über die Treppe erreichbar. Im Keller werden Sicherheitstüren verbaut, die ich noch aus einem anderen Objekt übrig habe. Somit wird es vom Keller her äußerst schwierig in den Wohnbereich bzw. an den Stromverteiler u.ä. zu kommen, der sich im Heizraum befindet. Das Fenster im Heizraum sient nur zur Lüftung und wird mit einem Lichtschacht gesichert, der unterhalb der Terrasse liegt. Im Erdgeschoss werden nur die Fenster- und Türkontakte verbaut. Vorsichtshalber würde ich aber gern die Kabel für Bewegungsmelder oder auch Glasbruchsensoren (falls sinnvoll) in die Wände legen. Bedienteile sollen an die Haustür und Kellertür und eventuell noch ins Schlafzimmer. der Bewegungsmelder im Flur ist relativ unproblematisch unterzubringen. Wo könnte ich weitere Bewegungsmelder vorrüsten? Wohn/Esszimmer und auch das Kinderzimmer hat relativ große Fenster. Muss ich in diesen Bereichen mit Problemen wegen der Sonneneinstrahlung rechnen? Neben dem Haus habe ich noch eine freistehende Garage mit einer Tür, 2 Fenstern und einem Sektionaltor. Diese würde ich gern mit absichern. Aktuell habe ich 2 Anlagen im Auge: Jablotron Oasis JA-83K bzw. Abus Terxon MX (wahrscheinlich sogar LX). Preislich nehmen sich beide Systeme nicht viel. Mit der Jablotron könnte ich das Haus absichern und separat auch die Garage. Allerdings wäre dies schon die Maximalkoniguration. Wenn ich das Nebengebäude im Keller einbinden möchte, reicht die Jablotron wohl nicht mehr aus. Zur Terxon habe ich noch nicht so viele Infos gefunden...Wenn ich richtig gelesen habe, kann ich mit der LX mehr Bereiche separat absichern als mit der Jablotron. Also Frage an die Profis: Welche Anlage wäre für meine Bedürfnisse empfehlenswert? Wo kann ich die Bewegungsmelder unterbringen (bzw. vorrüsten)? Was würdet Ihr anders machen? PS: Ich weiß, das Telenot und Co. super Anlagen bauen. Diese kommen aber preislich nicht in Frage, daher würde ich mich gern auf die genannten oder Alternativen beschränken, die im preislichen Bereich der Abus oder Jablotron liegen. |
|||
|
07-04-2013, 13:22
Beitrag: #2
|
|||
|
|||
|
RE: Entscheidungshilfe EMA (Kabel)
Kleiner Nachtrag:
Es wird die Abus Terxon LX. Ich brauche also nur noch Tipps zu den Sensoren oder Bewegungsmeldern. Wäre der Einsatz von Lichtschranken eine Alternative zu Bewegungsmeldern? Die Lichtschranken könnte man doch in Fluren und Treppenhäusern so hoch montieren, dass der Hund diese nicht auslöst... |
|||
|
|
Benutzer, die gerade dieses Thema anschauen: 1 Gast/Gäste
Suche
Mitglieder
Kalender
Hilfe



