|
Planung EMA für Reiheneckhaus
|
|
15-03-2012, 16:44
Beitrag: #1
|
|||
|
|||
|
Planung EMA für Reiheneckhaus
Hallo zusammen,
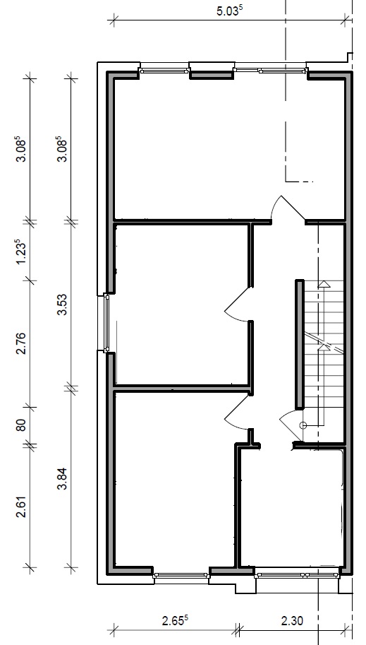
ich lese hier schon eine Weile unangemeldet passiv mit. Ich werde Ende April mein neu gebautes REH übergeben bekommen und möchte dann eine EMA einbauen. Ich bin nicht besonders gefährdet, insofern reicht mir eine relativ einfache Anlage, die ich selbst installieren kann. Da bei Übergabe weder Boden noch Tapeten vorhanden sind, werde ich ein kabelgebundenes System einsetzen. Ich würde mich freuen, wenn Ihr mir noch Anregungen zu meiner Planung geben könntet, ich habe dazu mal die GRundrisse hochgeladen. Nach erster Marktübersicht habe ich mir die Abus Terxon in die engere Wahl genommen, bin mir aber noch nicht sicher, ob ich die M oder L nehmen soll, die L bietet anscheinend wenig Vorteile für mich (auf die paar € kommts nicht an). Aber auch hier kann ich umplanen, wenn es was besseres in der ähnlichen Preisklasse gibt. Bin auf Abus gekommen, weil ich seit 3,5 Jahren vollkommen problemlos und zuverlässig eine einfache Privest in meiner Mietwohnung betreibe. Keller: Alarmzentrale, Öffnungsmelder und passive Glasbruchmelder an den Fenstern. Wassermelder in der Nähe der Waschmaschine. Die Zentrale wird über einen separaten Sicherungsautomaten ohne vorgeschalteten FI gespeist. EG: Ich möchte jedes Fenster und die Haustür mit Öffnungsmeldern mit Sabotageschleife sichern. Haustür mit Ein-/Ausgangsverzögerung, alles andere auf Sofortalarm. Rechts von der Haustür (Wand zum WC) möchte ich innen ein Bedienteil einsetzen, Leerrohr liegt bereits. Ich möchte keine Schaltung der Anlage von außen realisieren, wenn meine Frau mal Ihre Handtasche mit PErso und Schlüssel verliert, ist die Sicherheit dahin. Verbindungstür Diele zu WZ würde ich auch mit Öffnungsmelder sichern, damit niemand mal schnell in den Keller rennen und die Zentrale zerstören kann (auch wenn das unwahrscheinlich ist). Glasbruch: Alle Fenster sollen gesichert werden. Hier entsteht schon das erste Problem. Die Fenster sind größtenteils mehrteilig, meist 3-4 Scheiben pro Fenster. Hier passive Glasbruchsensoren zu verwenden, würde extrem bescheiden aussehen! Also möchte ich auf akustische Sensoren setzen. 1. Frage: Kann ich davon ausgehen, dass ein auf der Stirnseite der Trennwand zur Kellertreppe, mit Blickrichtung auf die Fensterfront gerichtet montierter akustischer Sensor fehlerfrei arbeitet und die ganze Fensterfläche abdecken kann? Am Fenster werden Vorhänge auf einem Deckenschienensystem montiert. Ansonsten hätte ich auch mit Deckenmontage kein Problem, bohre ich halt von oben durch. 2. Frage: Das seitliche Fenster könnte ich von Gegenüber (also auch Wand zur Treppe, aber halt andere Seite) mit dem akustischen Sensor abdecken. Unter dem Sensor stünde allerdings ein Aquarium (mit Wassermelder). Eigenlich sollte das AQ ja nicht stören? Deckenmontage fällt hier aus, da sich darüber das bereits geflieste Bad befindet. 3. Frage: Auf welche Höhe müssten die Sensoren (betrifft dann wohl auch die Küche im EG)? 4. Macht eine zusätzliche Überwachung per Dual-Bewegungsmelder hier noch Sinn? Würde ich sonst drauf verzichten. Komponenten bzw Verkabelung: Ich würde alle Glasbruchmelder auf eine Zone legen inkl. deren Sabotagelinie. Die Öffnungsmelder bekommen je eine eigene Zone mit eigener Sabotagelinie (über 1 Drahterweiterungsmodul je EG/OG). OG: im Grunde analog EG, nur dass die Haustür fehlt und die Öffnungsmelder der Schlafzimmerfenster intern unscharf bleiben sollen. Bedienteil außerhalb Schlafzimmer an der Wand zum Bad, Leerrohr liegt. Die akustischen Glasbruchmelder machen mir hier wenig sorgen, Montagepunkt ggü. den Fenstern sind vorhanden. DG: Analog OG, nur ohne Bedienteil. Insgesamt werden es also 18 Öffnungsmelder, 11 akustische und 2 passive Glasbruchmelder + 2 Wassermelder, 2 Bedienteile, 2 Drahterweiterungen (im ABUS-Fall) und natürlich Zentrale, Batterie und Sirene. Programmierung Haustür als Ein-Ausgang mit Verzögerung. Öffnungsmelder Schlafzimmerfenster sowie Zwischentür Diele EG nur intern. Glasbruch auf Relaisausgang und auf die Rolladensteuerung (runter bei Glasbruch). Rauchmelder werden nicht in EMA integriert, liegen aber auf dem Windalarm der Rolladensteuerung, man will dann ja raus ![]() Freue mich auf Eure Kommentare! |
|||
|
18-03-2012, 12:03
Beitrag: #2
|
|||
|
|||
|
RE: Planung EMA für Reiheneckhaus
Aloha Heh (Hawaii) Frame77
An diesem Punkt einer Planung würde ich mich ohne Nachzudenken für eine Terxon LX entscheiden. Ich kämpfe seit 1 ½ Jahren mit den ‘Mängeln’ einer MX und habe mich mal schlau gemacht, was die LX so mehr kann. Zwei Punkte fehlen mir ganz besonders, die Anzahl der Ausgänge für eine externe Anzeige und der Timer. Ich bin fast geneigt meine MX gegen eine LX zu tauschen, nachdem ich das gelesen habe. Die bescheideneren MX Werte in Klammern. - Acht frei programmierbare Alarmzonen (4) - Erweiterbar auf maximal 264 Zonen durch optionale Erweiterungsmodule (32) - Verwendung von bis zu acht Teilbereichen (4) - Ein Anschluß für eine externe Sirene/Blitz - Drei Transistorausgänge und zwei Relaisausgänge (1 + 2) - Separate Anschlüsse von Blitz und Sirene je 500 mA max. (nein) - 21 Ausgänge auf der Hauptplatine, auf bis zu 93 Ausgänge erweiterbar (3 + 8) - Einfache Programmierung (nana, das möchte ich sehen!) - ... und Bedienung über ein, bzw. maximal 128 Bedienteile (4) - Der Zustand der Alarmzonen und der Alarmzentrale wird mittels Klartextanzeige angezeigt (nein) - Automatisches Aktivieren und Deaktivieren über Zeitplan (nein) - Aktivierung der Ausgänge über Zeitplan (nein) - Integriertes Telefonwählgerät (ja) , aber AWUG (nein) - Eigene Sabotagezone für jede Alarmzone (nein) - Alarm- und Ereignisspeicher 2000-fach (250) > Die Zentrale wird über einen separaten Sicherungsautomaten ohne vorgeschalteten FI gespeist. Gute Idee. Auch an die Tiefkühltruhe denken. Mein Nachbar hat sich im Weinjahrhundertjahr 1976 durch 6 Wochen Abwesenheit mit diesen bescheuerten FI Automaten eine mit sehr edlen Fleisch gefüllte Truhe ‘verwesen’ lassen. Bei wieviel Milliampere Fehlerstrom reagiert denn die Sicherung? > ... und die Zentrale zerstören kann (auch wenn das unwahrscheinlich ist). Genau ... > Hier passive Glasbruchsensoren zu verwenden Mir sind gut sichtbare Rüttelkontakte lieber > ... mit dem akustischen Sensor abdecken. Wären Bewegungsmelder nicht auch eine Option? So ein neues Haus bewegt sich, besonders das Holz (arbeitet immer, im Gegensatz zu ....) Viel Spaß Manfred |
|||
|
18-03-2012, 16:32
(Dieser Beitrag wurde zuletzt bearbeitet: 18-03-2012 16:34 von Ollik.)
Beitrag: #3
|
|||
|
|||
RE: Planung EMA für Reiheneckhaus
(18-03-2012 12:03)Manfredo schrieb:Frame77 schrieb:Die Zentrale wird über einen separaten Sicherungsautomaten ohne vorgeschalteten FI gespeist. Zur Abus kann ich nichts sagen (nicht 'mein' Hersteller), aber Manfred hat ja schon (sogar mir) recht einleuchtend erläutert, warum Frame77 doch lieber zur LX greifen sollte, danke für die gute Beschreibung! @Frame77: Willkommen bei uns auch als aktiver (Mit-)Schreiber, du hast dir schon genau die richtigen Gedanken gemacht, sehr schön. Und geradezu grandios finde ich deine Ergebnisse bezüglich deiner Rollladensteuerung (bei Feuer hoch, bei Glasbruch runter) - diese Ideen setzen leider viel zu wenig Nutzer einer EMA um, weil sie einfach nicht daran denken (und/oder weil wir 'Profis' sie nicht ausdrücklich auf diese Möglichkeiten hinweisen) - alles richtig gemacht, das gibt ein rotes Doppelplus im Zensurenheftchen!!! ![]() Zur Absicherung seien mir noch einige Anmerkungen gestattet: Sorry Manfred, in meinen Augen sind FI-Schutzschalter keineswegs "bescheuert" (wenn man sie denn richtig aufteilt!), sondern die einzig wirkungsvolle Methode, einen ausreichenden Personenschutz zu gewährleisten. Mir sind die Dinger sehr symphatisch (könnte auch daran liegen, dass ich Kinder habe...^^)! Bei Festanschluss der Zentrale ohne Schukosteckdose o.ä. dazwischen (alles andere halte ich sicherheitstechnisch eh für grob fahrlässig), ist der Anschluss über einen (separaten) Leitungsschutzautomaten ohne FI in den meisten Bundesländern zulässig, sollte man den FI (in neudeutsch auch RCD genannt) aber trotzdem wollen oder ihn landesspezifisch eben brauchen, sollte auch dieser ausschließlich die Leitung zur EMZ absichern. Dafür bieten sich z.B. die kombinierten FI/LS-Automaten an, die inzwischen auch für schmales Geld zu kriegen sind (in der Version "2-polig B16/0,03A" je nach Hersteller und Händler um und bei 30-40 Euronen netto). So hat man eine klare Trennung (auch optisch in der Verteilung) zwischen seinen sicherheitsrelevanten Stromkreisen (zu denen man ja auch seine TK-Truhe zählen kann) und den 'normalen', dir ruhig über (mehrere) 'Sammel-FIs' betrieben werden können und dürfen. *Klugscheißermodus AN* Tiefkühltruhen verfügen nur in den seltensten Fällen über einen Festanschluss, sondern meistens über den besagten Schukostecker - in diesen Stromkreisen ist wie gesagt, ein FI zwingend vorgeschrieben (ja, ich weiß, es gibt auch hier Ausnahmen und so etwas wie Bestandsschutz, aber so weit möchte ich hier jetzt nicht gehen ).Um eine Verwesung des TK-Gutes zu verhindern, wenn z.B. 'nur' die Gartenteichpumpe einen Fehlerstrom aufwies und zum Auslösen des FI führte, bleibt wiederum nur die Verwendung von mehreren separaten FI-Schutzschaltern. Bei Verwendung der FIs für den Personenschutz (Schutz gegen zu hohe Berührungsspannungen) ist ein Auslöse-/Differenzstrom von 30mA vorgeschrieben, die 300mA-Versionen dürfen nur aus Gründen des Brandschutzes vor eine Anlage (vor-)geschaltet werden. Insofern bleibt zu sagen: Frames Sicherung reagiert auf keinerlei Fehlerstrom, es sein denn, der Auslösestrom des Sicherungsautomaten (meistens B16A) wird überschritten, aber dann heißt er eigentlich auch schon Kurzschlussstrom. *Klugscheißermodus AUS*In diesem Sinne und mögen alle Lampen ohne Ausfälle ewig leuchten, viele Grüße Olli Keine Haftung für Sach- oder Personenschäden. Die sach- und fachgerechte Umsetzung liegt beim Ausführenden. Alle gängigen Normen und Vorschriften sind zu beachten, sonst siehe Avatar... Bitte keine technischen Anfragen per Email oder PN stellen, sondern offen im Forum posten, danke! |
|||
|
18-03-2012, 17:10
Beitrag: #4
|
|||
|
|||
|
RE: Planung EMA für Reiheneckhaus
@Manfredo danke, dann wirds die LX, die 120€ machen den Braten nicht fett.
@Olli Danke auch Dir, dann werde ich einen kombinierten Automaten für die Zentrale nutzen. Auch wenn ich die keinesfalls über eine Steckdose anschließen würde... Mit der Steuerung habe ich noch andere Spielereien vor, wenn die Anlage schon An-/Abwesenheit signalisieren kann, dann nutze ich das auch, zB - Rolläden runter bei intern scharf (="ich geh heut' früher schlafen, also Schotten dicht!") - Wenn Helligkeit unter Schwellwert und Scharfschaltung erfolgt (=Abwesenheit), dann runter - bestimmte Steckdosen aus bei extern scharf - Licht aus bei extern scharf - Heizung absenken oder halt wieder anfahren - Licht in der Diele an bei Auslösung Haustürzone und was mir noch so im "Betrieb" einfallen wird. Wird bestimmt spannend .Gruß Frame |
|||
|
18-03-2012, 17:24
(Dieser Beitrag wurde zuletzt bearbeitet: 18-03-2012 17:25 von Ollik.)
Beitrag: #5
|
|||
|
|||
|
RE: Planung EMA für Reiheneckhaus
*Damen hoch*@Frame! Halte uns bitte über dein Projekt auf dem Laufenden, ich mag solche 'Spielereien'. ;o)
|
|||
|
18-03-2012, 18:06
Beitrag: #6
|
|||
|
|||
|
RE: Planung EMA für Reiheneckhaus
Ich seh schon ein Relaisgrab vor mir
|
|||
|
19-03-2012, 10:10
Beitrag: #7
|
|||
|
|||
|
RE: Planung EMA für Reiheneckhaus
Hi Ollik,
auch wir haben Kinder und diese mit kleinen, flachen Deckeln in der Schukosteckdose geschützt großgezogen. Auch wenn ich manchmal bei dem erst um 90° gedrehten Stecker reinstecken geflucht habe. Doch zum FI Schalter und ich bitte um Einspruch, wenn ich mich verrechnet habe. Um eine 30mA FI-Sicherung auszulösen wird bei 230 V einen Widerstand von < 7,666 kW gebraucht, wenn ich das Ohmsche Gesetz noch etwas in Erinnerung habe. Richtig? Ich habe mal ein paar Buben und Mädels in der Nachbarschaft unter verschiedenen Bedingungen vermessen und den Schnitt davon ausgeknobelt. - je ein Finger an Messpitze antippen > 1 mW - Riesige Büroklammer fest in den Händen > 500 kW - Mit nassen Pfötchen noch einmal an die Klammer > 150 kW Vielleicht könnte man die Werte noch verbessern, wenn man den Selbstmordkandidaten bittet, seine zwei nassen Hände flach auf stromführende Teile zu legen. Bei der Formel I=U/R komme ich selbst bei großzügig nach unten dimensionierten Innenwiderstandes eines Menschen mit 50 kW auf 0,0046 A = 4,6 mA !! Richtig ? Wir sollten also einen 3mA FI haben um Menschen zu schützen. Den habe ich noch nicht gesehen. Das bedeutet doch, daß ein 30 mA FI niemals bei einer menschlichen Berührung auslösen würde, sondern diesen bis zum Herzkammerflimmern und Tod kräftig mit Strom versorgt! Sie helfen natürlich bei kräftigen zu möglichen Bränden führenden Kriechströmen oder auch bei gehirnlosen Menschen mit Fön in und Fernseher auf der Badewannenkante Unfällen, so passiert im Bekanntenkreis mit tödlichen Ausgang. Ollik, die Deckel für die Schukosteckdosen habe ich wohl noch. Stehen Dir gern kostenlos zur Verfügung. Alles Gute Manfred |
|||
|
19-03-2012, 11:16
Beitrag: #8
|
|||
|
|||
|
RE: Planung EMA für Reiheneckhaus
Noch eine Empfehlung für die LX, Frame.
Schau zu, daß Du die Installationsanleitung in PDF Format bekommst. Und wenn ja, ich hätte gern eine Kopie, da mich die LX auch interessiert und auch zum Vergleichen mit der MX Doku, die ein paar Macken hat. Ich finde im einfach WWW nichts. Auch eine englische LX Version könnte sehr hilfreich sein, da bei der Übersetzung ins Deutsche es manchmal klemmt. Unser Text brauch halt mehr Platz. Ciao Manfred |
|||
|
19-03-2012, 12:10
Beitrag: #9
|
|||
|
|||
|
RE: Planung EMA für Reiheneckhaus
HI Manfredo,
das Forum hält meine Antwort für Spam ich versuchs nochmal...Die Installationsanleitung ist auf der ABUS- Website, man muss sich aber ganz schön durchklicken, bis man von den Funkanlagen wegkommt... http://www.abus-sc.de/content/download/231534/2798409 Gruß Frame ...vielleicht klappt's ja in 2 getrennten Beiträgen. Falls ja, dann hier die anderen Dokumente. http://www.abus-sc.de/silver.econtent/ca...200?tab=dl |
|||
|
19-03-2012, 12:30
Beitrag: #10
|
|||
|
|||
|
RE: Planung EMA für Reiheneckhaus
Aloha Frame,
danke, doch die Installationanleitung (119 Seiten) und das Einrichterhandbuch (109 Seiten) habe ich jetzt in PDF und teile gern wenn gewünscht. Die "21 Ausgänge auf der Hauptplatine, auf bis zu 93 Ausgänge erweiterbaren" habe ich noch nicht gefunden. Und um die geht es bei mir. Auch da sehe ich nur eine optionale Relaisplatine mit 8 zusätzlichen Relais (für 10,- selbst bauen). Muß noch einmal genauer lesen. Sollte ich diese Ausgänge noch finden, könnten wir eventuell bei der Installation 'zusammen leiden'. Die MX Dokumente sind komplett anders, erscheinen mir jedoch übersichtlicher. Aber in der MX ist Stimmung, wow! Den Proximity-Chipschlüssel und Akku möchte ich noch empfehlen (nicht im Lieferumfang, leider) Gruß Manfred |
|||
|
19-03-2012, 13:34
Beitrag: #11
|
|||
|
|||
|
RE: Planung EMA für Reiheneckhaus
Kein Problem.
Was mich bei der LX noch stört: So wie ich die Anleitungen lese, kann ich hier nicht einfach auf Knopfdruck intern oder extern scharf schalten, sondern muss zumindest bei intern einen Teilbereich auswählen (ich brauche eigentlich gar keine Teilbereiche). Bei der MX drücke ich einfach auf "A" (=extern) oder "B" (=intern) und fertig. Könnte relevant für Frau und ggf. später Kind werden. Andererseits... einfach Durchbestätigen reicht ja für "extern", nur intern müsste man halt den Teilbereich wählen. Außerdem hat die Busleitung der LX 5 Adern, ich habe in den Leerrohren jetzt 4 eingezogen. Hoffe die Kabel sind alle noch gängig, dann kommen halt 8er rein. Muss ja eh noch "ein paar" Meter ziehen. Gruß Frame |
|||
|
19-03-2012, 15:58
Beitrag: #12
|
|||
|
|||
|
RE: Planung EMA für Reiheneckhaus
Noch eine wichtige Frage:
Abus zeigt auf der Homepage die Montage des akustischen Glasbruchsensors seitlich des zu überwachenden Fensters: ![]() Funktioniert das so überhhaupt? Lt. Anleitung soll der Sensor gegenüber sitzen. Die seitliche Variante ist natürlich deutlich attraktiver... Gruß Frame |
|||
|
19-03-2012, 17:26
Beitrag: #13
|
|||
|
|||
|
RE: Planung EMA für Reiheneckhaus
> Außerdem hat die Busleitung der LX 5 Adern, ...
Tatsächlich. Mist. Die LX hätte sogar gern 6 Adern. Bei Pollin gibt es : Telefon-Installationskabel Philips 6x0,5 mm ø, UL/CMX (ungeschirmt), auf Kunststofftrommel. Länge 75 m für 9,95 € . Davon habe ich schon einige Rollen verbaut Etwas steif bei kühlen Temperaturen. Also im Sommer verlegen, haha ... > ... ich habe in den Leerrohren jetzt 4 eingezogen. Hoffe die Kabel sind alle noch gängig, dann kommen halt 8er rein. An die schon gelegten Kabel die neuen gut anlöten und mit etwas Talkum nachziehen. Zwei-mann-job. > Abus zeigt auf der Homepage die Montage des akustischen Glasbruchsensors seitlich des zu überwachenden Fensters... Da wollte Marketing wohl Glas und Melder auf einem Foto haben. Kleiner Lapsus, denke ich. Die zu analysierenden Frequenzen im Infra- und hörbarem Schall eines Glasbruches werden sicherlich optimal gegenüber erkannt. Seitlich dürften es für die niedrigeren Frequenzen weniger Probleme geben. Doch die hohen? So sagt denn auch die Anleitung : nicht empfohlen, ... Und die kleinen Melder auf die Scheibe geklebt, wären keine Lösung? Gruß Manfred |
|||
|
19-03-2012, 18:23
Beitrag: #14
|
|||
|
|||
RE: Planung EMA für Reiheneckhaus
(19-03-2012 17:26)Manfredo schrieb: Tatsächlich. Mist. Die LX hätte sogar gern 6 Adern. Bei Pollin gibt es : Telefon-Installationskabel Philips 6x0,5 mm ø, UL/CMX (ungeschirmt), auf Kunststofftrommel. Länge 75 m für 9,95 € . Davon habe ich schon einige Rollen verbaut Etwas steif bei kühlen Temperaturen. Also im Sommer verlegen, haha ... Au backe... bitte spart nicht am Kabel, und verlegt vernünftiges Installationskabel J-Y(ST)Y 4x2x0,6 Vorallem bei Bus-Leitungen!! |
|||
|
19-03-2012, 19:34
Beitrag: #15
|
|||
|
|||
|
RE: Planung EMA für Reiheneckhaus
Ja super. Wollte gerade den Link zum bisher benutzen Kabel posten, da schließt das Forum mich wegen Spamverdacht aus.
Was ist denn das bitte für ein Unsinn? Naja, nächster Versuch ohne Link. Ich hatte bisher das Abus-Kabel 8adrig, geschirmt, 0,22mm für die Leerrohre in die Räume genutzt. Nur zu den Bedienteilen natürlich nicht, da liegt das 4adrige. Gruß Frame |
|||
|
20-03-2012, 23:44
Beitrag: #16
|
|||
|
|||
|
RE: Planung EMA für Reiheneckhaus
Sorry @ Frame77 (Original),
manchmal ist das Forensystem etwas 'überkritisch', was vermeintlichen Spam angeht (wir sind allerdings auch 'gebrannte Kinder')... Aber wie auch immer, ich habe dich dann mal wieder freigeschaltet, nochmals sorry für die Unannehmlichkeiten *rotwerd* VG Olli |
|||
|
21-03-2012, 01:12
Beitrag: #17
|
|||
|
|||
|
RE: Planung EMA für Reiheneckhaus
Hi Manfred,
na dann wollen wir die Thesen mal ein wenig 'zerpflücken'... ![]() Meine Kinder sind inzwischen fast aus dem Haus, somit sinkt auch das Risiko, dass sie mit irgendwelchen Stricknadeln in den Steckdosen spielen , von daher kann ich dein Angebot wohl recht beruhigt ausschlagen - trotzdem Danke dafür!^^Zu allererst möchte ich den Unterschied zwischen einem Leitungsschutzschalter (auch 'Sicherung' genannt) und einem FI erläutern: Die 'Sicherung' interpretiert alles unterhalb ihres Nennstroms (im Haushalt meist 16A) als in Ordnung, ohne Rücksicht darauf, wohin oder worüber ihr Strom fließt: Betriebsstrom von eingeschalteten Leuchten und anderen Geräten, Fehlerstrom über einen menschlichen Körper durch Leitungs- oder Geräteschäden - im letzteren Fall könnten also theoretisch 15,9A durch deinen Körper fließen und deine Sicherung meint immernoch, dass alles i.O. ist. Folge: Strom macht klein, schwarz und hässlich - mit Glück setzt der Herzstillstand ein, bevor du 'gar gekocht' geworden bist. Der FI deckt eine ganz andere Gefahr ab: er ist quasi ein 'Vergleicher', der den Strom in Richtung der Geräte und den Strom, der von den Geräten wieder zurück kommt, miteinander abgleicht. Wird die Differenz zwischen den beiden Strömen (bzw. Stromrichtungen) größer als 30mA (weil z.B. jemand eine schadhafte Leitung berührt, während dieser Jemand auch so richtig schön geerdet ist), interpretiert der FI dies als Fehlerfall und schaltet den Stromweg ab. Das Ohmsche Gesetz hast du noch ganz gut drauf: auch ich komme bei der (theoretischen) Rechnung 230V geteilt durch 30mA auf einen Widerstand von rund 7,6kOhm (bitte nicht mit kW verwechseln, das wäre eine Leistungsangabe), die unterschritten werden müssten, um den FI auslösen zu lassen. Deine Messversuche mit den Nachbarskindern in allen Ehren, aber die Werte hätten eigentlich genau entgegengesetzt erscheinen müssen (wenn ich mal mW mit milliOhm und kW mit kiloOhm 'übersetze'): Bei trockenen Fingerspitzen muss der Widerstand deutlich höher sein als bei nassen Pfötchen an einer größeren Fläche)! Zudem sind deine Messergebnisse vermutlich mit einem handelsüblichen Multimeter entstanden (zum Glück!) und weisen daher einen relativ großen Messfehler aufgrund der zu geringen Messspannung aus (vermutlich 9V DC) - der menschliche Körper hat aber bei einer Spannung von 230V AC/50Hz (also Wechselspannung im Gegensatz zur Gleichspannung beim Messgerät) als grober Richtwert nur noch etwa 1 bis 1,5 kOhm, nachzulesen z.B. hier: http://de.wikipedia.org/wiki/K%C3%B6rperwiderstand (wie immer ist Wiki mit Vorsicht zu genießen-es ist halt nicht alles Gold, was glänzt) und somit deutlich geringer als der oben errechnete Wert i.H.v. rund 7,6kOhm! Dein Vorschlag mit dem Selbstmordkandidaten hätte also tatsächlich korrektere Werte ergeben ![]() Wenn wir die Formel umstellen, erhalten wir bei einer Spannung von 230V AC und einem angenommenen Körperwiderstand von 1,5kOhm einen durch den Körper fließenden Strom in Höhe von rund 153mA. Somit ist ein FI mit einem Auslösestrom von 30mA also voll im 'grünen Bereich' und ein 3mA-FI (den ich auch noch nie gesehen habe) würde sich ständig im ausgelösten Zustand befinden. Zur Info: ab etwa 15mA Körperstrom kann man das stromführende Teil schon nicht mehr loslassen, weil die Muskeln verkrampfen. Hinzu kommt noch, dass in eigentlich jeder (größeren) E-Anlage sowieso schon gewisse Fehlerströme fließen, die den FI quasi 'vorbelasten', so dass ein eventuell auftretender Körperstrom noch nicht mal die Höhe von 30mA erreichen muss, da sich der Körperstrom mit dem vorhandenen Fehlerstrom addiert. Doch nun genug mit der Klugsch....rei, es sei nochmals auf Fremdseiten verwiesen: http://www.patrickwagner.de/Knowhow/Fehl...alter.html (relativ einfach formuliert, Seite eines Nicht-Fachmannes, sachlich aber ziemlich korrekt) oder eben wieder Wiki: http://de.wikipedia.org/wiki/Fehlerstromschutzschalter (deutlich mehr 'Fachchinesisch' und tlw. auch nicht korrekt). Danke für die Vorlage zum Seitenschinden ![]() Viele grüße Olli Keine Haftung für Sach- oder Personenschäden. Die sach- und fachgerechte Umsetzung liegt beim Ausführenden. Alle gängigen Normen und Vorschriften sind zu beachten, sonst siehe Avatar... Bitte keine technischen Anfragen per Email oder PN stellen, sondern offen im Forum posten, danke! |
|||
|
21-03-2012, 21:23
Beitrag: #18
|
|||
|
|||
|
RE: Planung EMA für Reiheneckhaus
> Wird die Differenz zwischen den beiden Strömen (bzw. Stromrichtungen) größer als 30mA (weil z.B. jemand eine schadhafte Leitung berührt, während dieser Jemand auch so richtig schön geerdet ist), interpretiert der FI dies als Fehlerfall und schaltet den Stromweg ab.
Einverstanden, Olli. > Das Ohmsche Gesetz hast du noch ganz gut drauf: auch ich komme bei der (theoretischen) Rechnung 230V geteilt durch 30mA auf einen Widerstand von rund 7,6kOhm (bitte nicht mit kW verwechseln, das wäre eine Leistungsangabe), die unterschritten werden müssten, um den FI auslösen zu lassen. ... (wenn ich mal mW mit milliOhm und kW mit kiloOhm 'übersetze') Danke dafür. Dieses Board hat das schöne Sonderzeichen ‘Ohm’ in ein ‘W’ verwandelt. Das war mir nicht aufgefällen. Sorry > Bei trockenen Fingerspitzen muss der Widerstand deutlich höher sein als bei nassen Pfötchen an einer größeren Fläche)! War ja auch so gedacht. Also hier noch einmal. - je ein Finger an Messpitze antippen > 1 MegOhm - Riesige Büroklammer fest in den Händen > 500 KiloOhm - Mit nassen Pfötchen noch einmal an die Klammer > 150 KiloOhm > ... als grober Richtwert nur noch etwa 1 bis 1,5 kOhm, Das lese ich bei Wiki nicht raus, Olli. Die Versuche an Lebenden geht bis 50V mit 45 KiloOhm(zu mehr hat sich wohl keiner getraut, haha ...) und dann an Leichen bis 200 V mit knapp 4 KiloOhm. Richtig ist wohl, das der menschliche Körper zu einem Ohmschen auch einen kapazitiven Widerstand in Abhängigkeit der Frequenz hat und den kriege ich mit einem normalen Instrument so nicht gemessen. Klar. Dann hoffen wir mal zum Segen der Zappelnden, daß die FI Schalter reagieren und ihren Job machen. > ... die den FI quasi 'vorbelasten', so dass ein eventuell auftretender Körperstrom noch nicht mal die Höhe von 30mA erreichen muss, da sich der Körperstrom mit dem vorhandenen Fehlerstrom addiert. Na, dann kann ja wirklich nichts mehr schiefgehen. > Zur Info: ab etwa 15mA Körperstrom kann man das stromführende Teil schon nicht mehr loslassen, weil die Muskeln verkrampfen. Das habe ich in meiner Lehrzeit mal geübt. Zwei Prüfspitzen an einer 25 W Glühbirne zum ‘durchklingeln’ von Drähten hatte ich, weiß der Teufel wie und der auch nicht genau, in den Händen. Der Befehl Loslassen vom Gehirn wurde ignoriert. Aber aufstehen, rückwärtslaufen bis die Kabel zu kurz und mir dann die Prüfspitzen aus den Pfötchen zogen wurden, ging noch! Anschließend gab es weiche Knie ... > Doch nun genug mit der Klugsch....rei, ... Nein, das war alles gut, ich lerne gern dazu und Wiki mag Schwächen haben, ich habe dort nichts zu mecken. > ... zum Seitenschinden Wink Wieder gut geschunden? Alles Gute Manfred Test noch einmal : Sonderzeichen Ohm wird > W Schade |
|||
|
22-03-2012, 00:43
(Dieser Beitrag wurde zuletzt bearbeitet: 22-03-2012 00:44 von Ollik.)
Beitrag: #19
|
|||
|
|||
|
RE: Planung EMA für Reiheneckhaus
Hallo Manfred!
Manfredo schrieb:[...]Dieses Board hat das schöne Sonderzeichen ‘Ohm’ in ein ‘W’ verwandelt. Das war mir nicht aufgefällen. SorryIch krieg' das Ohm als Sonderzeichen noch nicht mal hin ;o) Und weiß der Teufel, warum das System daraus ein "W" macht - deshalb ein Sorry von mir. Manfredo schrieb:Dann hoffen wir mal zum Segen der Zappelnden, daß die FI Schalter reagieren und ihren Job machen.Da hoffe ich mit! Aber passt schon, die Dinger funktionieren wirklich so gut wie immer... ![]() Manfredo schrieb:Das habe ich in meiner Lehrzeit mal geübt. [...]Anschließend gab es weiche Knie ...Aua, das tut schon beim Lesen weh! Gut, dass alles gut ging!!! Manfredo schrieb:Test noch einmal : Sonderzeichen Ohm wird > WYepp, sehr schade. Mal schauen, ob wir da was dran drehen können (am nächsten langen, kalten Winterabend, grins)... Ich danke dir für dein Verständnis und auch für deine Anregungen. VG Olli |
|||
|
21-04-2012, 18:37
Beitrag: #20
|
|||
|
|||
|
RE: Planung EMA für Reiheneckhaus
So, jetzt wirds akut, ab Donnerstag wird eingebaut.
Da ich meine Kunstofffenster nicht anbohren möchte, werde ich für die Öffnungsmelder mit Montagekleber arbeiten, Glasbruchmelder mit Loctite. Die Kabel wollte ich mit Acryl auf dem Kunstoff befestigen, funktioniert das langfristig? Soll natürlich möglichst sauber aussehen. Dann die Kante zum Fensterausschnitt schräg durchbohren, so dass ich ca. 3cm an der Wand vor der Eckschiene schräg reingehe und ca. 2-3cm im Fensterausschnitt rauskomme. Kabel dann unter Putz zum Lötverteiler, den ich je Fenster setzen werde, möglichst tief, wird dann mit Deckel verspachtelt und übertapeziert. Soweit ok? |
|||
|
|
Benutzer, die gerade dieses Thema anschauen: 1 Gast/Gäste
Suche
Mitglieder
Kalender
Hilfe




*Klugscheißermodus AUS*
.
ich versuchs nochmal...![[Bild: 1448044-1-ger-DE_Bild-GB2000_anwend1.jpg]](http://www.abus-sc.de/var/StorageSecuritycenter/Produktbilder/sc_popup/1448044-1-ger-DE_Bild-GB2000_anwend1.jpg)
, von daher kann ich dein Angebot wohl recht beruhigt ausschlagen - trotzdem Danke dafür!^^
