Antwort schreiben 
 
Themabewertung:
  • 0 Bewertungen - 0 im Durchschnitt
  • 1
  • 2
  • 3
  • 4
  • 5
Garage in die Alarmanlage einbinden
05-11-2018, 22:16
Beitrag: #1
Garage in die Alarmanlage einbinden
Hallo zusammen,

ich hab mich bereits für eine Alarmanlage entschieden(Satel Integra WRL 128).
Aktuell bin ich mit der konfiguration / parametrierung beschäfftigt.
Durch mein gekoppektes Bus System habe ich zugriff auf eine Features des KNX Bus (Türen aufsperren).

Grundlegend möchte ich bisher in zwei Zonen unterteilen:

A) INTERN + EXTERN => Bewegungsmelder Innen + Reed Außenhaut (25 Fenster + 1 Haustüre + 1Nebeneingangstüre)
B) Außenhaut (EXTERN)

Nun hab ich aber hinter der "Außenhaut" direkt die Garage angebaut. Heißt nach meiner Nebeneingangstüre befindet sich eine Doppelgarage inkl. Fenster (mit Reed) und einer weiterer NebeneingangstüreGarage (Reed) und einem Garagentor mit Motor ebenfalls mit Reed und öffnen und schließen per KNX.

Für mich ist aktuell unklar, wie ich diese drei Reeds sinnvoll in mein Konzept integriere.

Weiterhin ist für mich die Frage, wo ich mein zweites KeyPad platziere.
Das erste befindet sich neben der Haustüre innenseite.

Für das zweite spiele ich mit dem Gedanken, dies in der Garage zu montieren.
Es wäre mir z.B. so möglich, nach Entschärfung der Extern-Partition die Nebeneingangstüre zum Haus aufzusperren.

Allerdings möchte ich nicht zwangsläufig durch öffnen der Garage (was zu einer entschärfung der Alarmanlage führen muss) die Nebeneingangstüre aufsperren.

Heißt das, ich bräucht dann noch ne dritte Partition für die Garage und es wäre dann so ?

1) Extern + Intern + Garage (alle außer Haus)
2) Extern + Garage (Außenhaut)

Mit der Fernbedieung der Garage würde ich in diesem Fall die Partition "Garage" entschärfen .
Dann geh ich zum KeyPad und geb den Code für Extern bzw. Extern + Intern ein => die Nebentüre sperrt sich auf.
Geh ich durch die Garagennebentüre in die Garage rein , muss ich am KeyPad mindesten die Partition Garage entschärfen damit kein Alarm kommt.


Haltet Ihr dies in der Praxis für Okay.... oder mach ich das viel zu umständlich ?





Danke für eurer Feedback
Alle Beiträge dieses Benutzers finden
Diese Nachricht in einer Antwort zitieren
06-11-2018, 12:28
Beitrag: #2
RE: Garage in die Alarmanlage einbinden
Alles kann in eine Partition.

A) und B) kannst du in einem Bereich (Zone) zusammenfassen und den Bewegungsmelder als Reaktionstyp 3 "interne mit Verzögerung" konfigurieren. Bei intern scharf ist der dann gesperrt und bei extern scharf kannst du die Auslösung verzögern, falls du selber durch den überwachten Bereich musst um unscharf zu schalten oder um das Haus zu verlassen.

Die Garage bekommt nur einen separaten Bereich (in der gleichen Partition). Du kannst in den Bedienteileinstellungen festlegen, welche Bereiche sie scharf/unscharf schalten sollen/dürfen.

Das Öffnen der Garage sollte bzw. muss nicht zur Entschärfung der Alarmanlage führen. Du kannst den Bereich Garage auch einfach sperren, oder nur die Linie, die in der Garage auslösen würde, wenn du rein kommst (z.B. Bewegungsmelder).

Ich habe genau die gleiche Konstellation wie du. Doppelgarage mit Nebeneingangstür zum Haus. Über einen Kontakt im Torantrieb sperre ich den BM in der Garage (wenn die Garage per FB geöffnet wird), die Anlage bleibt aber scharf. Die Nebeneingangstür ist als Ein-Ausgangstür mit Verzögerung projektiert. Bedienteil sitzt im Haus. Wenn ich die Garage verlasse (extern scharf), ist die Torschlussmeldung der Trigger, den Bereich scharf zu schalten. Bei "intern scharf" sofort. Hierbei wird geprüft, ob das Tor auch geschlossen ist, wenn nicht, wird es automatisch geschlossen und danach die Garage scharf geschaltet.

Arrow Satel Integra 64 Plus, alles diskret verdrahtet, kein Funk, 2xINT-TSI, 2xSatel Grey Dual, 6xVD-1, 8xS1, 1xB-3A, INT-VG, ETHM1-Plus, INT-GSM LTE, 2xSPW100, SP-4003. In Betrieb seit 02.01.2016.
Alle Beiträge dieses Benutzers finden
Diese Nachricht in einer Antwort zitieren
06-11-2018, 21:17
Beitrag: #3
RE: Garage in die Alarmanlage einbinden
So hätte ich das auch gerne ... kannst du deine Konfig preisgeben?

Danke & Gruss

efes

Disclaimer:
Ich bin eine Privatperson ohne Fachnachweis(e) im Bereich Sicherheitstechnik. Ich kommentiere nach bestem Wissen und Gewissen, ohne Gewähr, ohne finanzielle Interessen.
Für fachkundige Unterstützung wenden Sie sich bitte an eine anerkannte Fachperson ihres Vertrauens.
Alle Beiträge dieses Benutzers finden
Diese Nachricht in einer Antwort zitieren
06-11-2018, 22:35
Beitrag: #4
RE: Garage in die Alarmanlage einbinden
Will mal nicht so sein Wink

Ein bisschen Gehirnschmalz muss man zur Nachnutzung sicher noch reinstecken um das zu durchschauen und für sich anzupassen.

Aber als Anregung sicher hilfreich.

Ich gebe einen Überblick über die Struktur, Linien und Ausgänge:
   
   
   

Arrow Satel Integra 64 Plus, alles diskret verdrahtet, kein Funk, 2xINT-TSI, 2xSatel Grey Dual, 6xVD-1, 8xS1, 1xB-3A, INT-VG, ETHM1-Plus, INT-GSM LTE, 2xSPW100, SP-4003. In Betrieb seit 02.01.2016.
Alle Beiträge dieses Benutzers finden
Diese Nachricht in einer Antwort zitieren
07-11-2018, 18:31
Beitrag: #5
RE: Garage in die Alarmanlage einbinden
Hi,

vielen Dank für den Input.

Ich hab da noch zwei Fragen:

1) Wie erkennst du am Garagenmotor das er per Fernbedienung geöffnet wird ?
2) Wie sperrst du deine Nebentür auf ? Oldschool per Schlüssel ?
3) Deine Garage hat aber nicht noch ne zusätzliche Eigangstür von außen ?

Gruß
Alle Beiträge dieses Benutzers finden
Diese Nachricht in einer Antwort zitieren
07-11-2018, 20:03
Beitrag: #6
RE: Garage in die Alarmanlage einbinden
(07-11-2018 18:31)pimpi schrieb:  1) Wie erkennst du am Garagenmotor das er per Fernbedienung geöffnet wird ?
2) Wie sperrst du deine Nebentür auf ? Oldschool per Schlüssel ?
3) Deine Garage hat aber nicht noch ne zusätzliche Eigangstür von außen ?

Zu 1: Ich Werte einen Kontakt vom Torantrieb aus, der mir mitteilt, wenn das Tor offen bzw. geschlossen ist. Nach Rücksprache mit Hörmann wird der Kontakt nicht betätigt, wenn das Tor hochgehebelt wird.
Das Signal nutze ich auch, um im INT-TSI den Torstatus per Icon anzuzeigen bzw. von diesem das Tor auch öffnen oder schließen zu können.

Zu 2: Per Schlüssel

Zu 3: Nein. Die Garage hat aber 2 Fenster. Der BM ist so angebracht, dass er Tor und beide Fenster im "Blick" hat.

Gruß Hogend

Arrow Satel Integra 64 Plus, alles diskret verdrahtet, kein Funk, 2xINT-TSI, 2xSatel Grey Dual, 6xVD-1, 8xS1, 1xB-3A, INT-VG, ETHM1-Plus, INT-GSM LTE, 2xSPW100, SP-4003. In Betrieb seit 02.01.2016.
Alle Beiträge dieses Benutzers finden
Diese Nachricht in einer Antwort zitieren
08-11-2018, 17:56
Beitrag: #7
RE: Garage in die Alarmanlage einbinden
(07-11-2018 20:03)Hogend schrieb:  Zu 1: Ich Werte einen Kontakt vom Torantrieb aus, der mir mitteilt, wenn das Tor offen bzw. geschlossen ist. Nach Rücksprache mit Hörmann wird der Kontakt nicht betätigt, wenn das Tor hochgehebelt wird.
Das Signal nutze ich auch, um im INT-TSI den Torstatus per Icon anzuzeigen bzw. von diesem das Tor auch öffnen oder schließen zu können.


Da ich auch einen Hörmann Antrieb habe, würde mich brennend interessieren wo du das abgreifst ? Aus der Hörmann Anleitung werd ich nicht ganz schlau.
Alle Beiträge dieses Benutzers finden
Diese Nachricht in einer Antwort zitieren
08-11-2018, 21:13
Beitrag: #8
RE: Garage in die Alarmanlage einbinden
Du brauchst noch das Optionsrelais "PR 1". Muss nicht das Original von Hörmann sein, gibt es auch günstiger als Nachbau. Funktionert bei mir einwandfrei (Supramatic 3).

Schaltbild:
   

Ich habe mir natürlich die Frage gestellt was passiert, wenn jemand das Segmenttor aufhebelt. Dazu habe ich vom Hörmann-Service folgende Auskunft bekommen:
Wenn das Tor gewaltsam aufgehebelt wird, würde der Endlagenmelder nicht schalten (aber: kein VdS-Geprüfter Kontakt).
Desweiteren gibt es eine Aufschiebesicherung und eine Getriebeselbsthemmung.

Arrow Satel Integra 64 Plus, alles diskret verdrahtet, kein Funk, 2xINT-TSI, 2xSatel Grey Dual, 6xVD-1, 8xS1, 1xB-3A, INT-VG, ETHM1-Plus, INT-GSM LTE, 2xSPW100, SP-4003. In Betrieb seit 02.01.2016.
Alle Beiträge dieses Benutzers finden
Diese Nachricht in einer Antwort zitieren
08-11-2018, 22:50
Beitrag: #9
RE: Garage in die Alarmanlage einbinden
Danke für die Info..

Hierzu noch folgende Verständnissfrage :

Der Ausgang hat ja lediglich eine Nachleutedauer.

Heißt du verliertst den Zustand "geschlossen" ja wieder ?

Sehe ich das richtig ?

Ich wäre einfachheitshalber mit einem Kabel in einen KNX Binäraktor....
Und hätte dann eigentlich nur 0/1 auf die Satel senden wollen ?

Wenn das Gerät aber seinen Zustand nicht behält geht das nicht

Ich hab am Rolltor bereits einen Reedkontakt verbaut, mit welchem ich auf uns zu sehr gut überwachen kann....

Was mir fehlt ist eine Meldung warum es offen ist ... also ob regulär oder aufgehebelt...
Alle Beiträge dieses Benutzers finden
Diese Nachricht in einer Antwort zitieren
08-11-2018, 23:46
Beitrag: #10
RE: Garage in die Alarmanlage einbinden
Hallo

Möchte mich auch mal einmischen. Hab mich mit dem Thema selber schon wg. meiner Garagentor-Absicherungen und dem Options-Relais von Hörmann (ProMatic + SupraMatic Antriebe) beschäftigt.

Zu deiner Verständnis-Unklarheit :
wenn man das Options-Relais einsetzt am HM-Antrieb dann hat das nichts mehr mit einer Nachleuchtdauer zu tun; diese wäre nur für die Beleuchtung ohne das PR1-Relais relevant. Mit dem Options-Relais ist das aber eine dauerhafte Kontakthaltung wenn das Tor über Antrieb regulär geschlossen (Kontakt angezogen) oder geöffnet wird (Kontakt offen).

Im Fall einer Manipulation durch Aufbrechversuch ändert sich der Zustand des PR1-Ausgang nicht und somit wird dein externer Reed-Kontakt die Manipulation melden bzw. du kannst / solltest über die Verknüpfung der beiden Kontaktzustände (den einen verzögert, der andere sofort) den Alarmzustand in deiner EMA auslösen.

VG "Topy"
Alle Beiträge dieses Benutzers finden
Diese Nachricht in einer Antwort zitieren
08-11-2018, 23:56
Beitrag: #11
RE: Garage in die Alarmanlage einbinden
Jawoll, die Erklärung passt! Die Nachleuchtfunktion gilt nur für die eingebaute Lampe. "Tor zu" bleibt stehen solange das Tor eben zu ist. Steht auch in der Tabelle unten in meinem angehängten Schaltbild.

Arrow Satel Integra 64 Plus, alles diskret verdrahtet, kein Funk, 2xINT-TSI, 2xSatel Grey Dual, 6xVD-1, 8xS1, 1xB-3A, INT-VG, ETHM1-Plus, INT-GSM LTE, 2xSPW100, SP-4003. In Betrieb seit 02.01.2016.
Alle Beiträge dieses Benutzers finden
Diese Nachricht in einer Antwort zitieren
09-11-2018, 11:03
Beitrag: #12
RE: Garage in die Alarmanlage einbinden
Cool - diese Art von Tor-Zusatz-Überwachung wollte ich schon lange...

Für mich ist jetzt nur noch die Positionierung meines KeyPads offen....

Anbei ein Ausschnitt meines Grundrisses:
Bei der Platzierung von KeyPad1 bin ich mir eigentlich recht sicher.

Bei KeyPad2 stellt sich für mich immer noch die Frage, in der Garage oder im Haus (beides mit 2 markiert)

Folgenden Ablauf könnt ich mir vorstellen wenn das KeyPad in der Garage hängt:

Zugang durchs tor
=> Tor auf => Bewegungsmelder sperren => kein Alarm => Anlage aber noch scharf
=> Tor zu => Bewegungsmelder wieder entsperren => Anlage weiterhin scharf
(so kann mein Opa / Papa Werkzeug aus meiner Garage holen ohne Alarm auszulösen und der Alarm ist auch weiterhin aktiv)
Gleichzeitg ensteht kein Stress / Handlungsbedarf bei der Einfahrt in die Garage
=> zum entschärfen gehe ich in der Garage ans KeyPad2 und deaktivere alle Zonen
=> per KNX lasse ich dann gleich die Eingangstüre zum Haus aufsperren
=> somit ist ein stressfreier und schlüsselfreier Zutritt möglich

==> wenn Tor auf (Rolltorkontakt Reed) und Antrieb sagt Tor zu => Einbruchsmeldung 1
==> gleichzeitig würde dann der BWG auslösen => Meldung 2

Darüber hinaus könnte ich noch folgendes machen => wenn die Garagentüre aufgesperrt ist, auch den BWG sperren.
Durch schließen denn BWG wieder freigeben.
So könnte ich nachts eben mal noch was im Auto holen, obwohl die Außenhaut "scharf" ist...


Zugang durch die Hintertür der Garage (nicht Haus)
=> Tür verursacht Eingangsalarm => 30 Sekunden Zeit um ans KeyPad zu gehen und die Partition der Garage oder Garage und Haus zu entsperren



Für das Szenario, wenn das KeyPad hinter der Türe (im Haus hängt) bekomm ich keinen vernünftigen Ablauf hin - was meint ihr - sollte schon besser sein wenn das Pad in der Garage hängt oder ?


Angehängte Datei(en) Thumbnail(s)
   
Alle Beiträge dieses Benutzers finden
Diese Nachricht in einer Antwort zitieren
09-11-2018, 20:40
Beitrag: #13
RE: Garage in die Alarmanlage einbinden
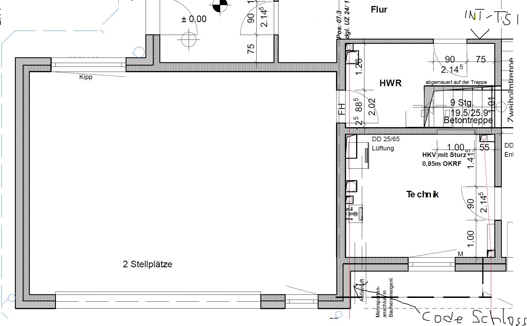
Also, zuerst einmal: geile Garage! 54 m². Ich habe bei uns im Wohngebiet schon die größte Garage, aber deine ist noch 4m² drüber.

Ich habe neben dem Rolltor ein Codeschloss angebracht, mit dem ich die Garage "legal" öffnen kann (also Status wie Öffnung per Handsender). Dadurch kann ich im Notfall ohne Schlüssel ins Haus, weil ich in der Garage einen Schlüssel versteckt habe.

Dadurch brauche ich auch kein Keypad von Satel an oder in der Garage. Ich habe nur eines im Haus im Flur.

Die Garage hat nach außen nur Fenster.

Hier mein Grundriss:


Angehängte Datei(en) Thumbnail(s)
   

Arrow Satel Integra 64 Plus, alles diskret verdrahtet, kein Funk, 2xINT-TSI, 2xSatel Grey Dual, 6xVD-1, 8xS1, 1xB-3A, INT-VG, ETHM1-Plus, INT-GSM LTE, 2xSPW100, SP-4003. In Betrieb seit 02.01.2016.
Alle Beiträge dieses Benutzers finden
Diese Nachricht in einer Antwort zitieren
10-11-2018, 11:55
Beitrag: #14
RE: Garage in die Alarmanlage einbinden
oh ... ist mir ehrlich gesagt noch gar nicht augefallen ... wohn hier am Ende der Welt (Grundstückspreise < 40 Euro/m) da spielt Platz keine Rolle ;-)
Alle Beiträge dieses Benutzers finden
Diese Nachricht in einer Antwort zitieren
10-11-2018, 18:06
Beitrag: #15
RE: Garage in die Alarmanlage einbinden
Ok, dann ist das gut machbar. Bei uns ist der m²-Preis dreistellig.

Arrow Satel Integra 64 Plus, alles diskret verdrahtet, kein Funk, 2xINT-TSI, 2xSatel Grey Dual, 6xVD-1, 8xS1, 1xB-3A, INT-VG, ETHM1-Plus, INT-GSM LTE, 2xSPW100, SP-4003. In Betrieb seit 02.01.2016.
Alle Beiträge dieses Benutzers finden
Diese Nachricht in einer Antwort zitieren
08-12-2018, 14:14
Beitrag: #16
RE: Garage in die Alarmanlage einbinden
(07-11-2018 20:03)Hogend schrieb:  Zu 1: Ich Werte einen Kontakt vom Torantrieb aus, der mir mitteilt, wenn das Tor offen bzw. geschlossen ist. Nach Rücksprache mit Hörmann wird der Kontakt nicht betätigt, wenn das Tor hochgehebelt wird.
Das Signal nutze ich auch, um im INT-TSI den Torstatus per Icon anzuzeigen bzw. von diesem das Tor auch öffnen oder schließen zu können.
Mit dem PR1 bekommst du die Endlage mit und kannst das am Display anzeigen, aber wie steuerst du den Antrieb an? So wie in http://www.alarmforum.de/Thread-Satel-Ei...4#pid33524 aufgezeigt wird wie man einen Tastendruck der original Funkfernbedienung simulieren kann oder gibt es da was besseres?
Alle Beiträge dieses Benutzers finden
Diese Nachricht in einer Antwort zitieren
10-12-2018, 15:20
Beitrag: #17
RE: Garage in die Alarmanlage einbinden
Ich habe in der Garage einen Wandtaster, der mit dem Torantrieb verbunden ist, um die Garage von innen zu öffnen. Dazu habe ich parallel ein Relais geschaltet, welches ich durch einen Ausgang der Integra für 1s ansteuere. So kann ich das Tor über die Integra öffnen und schließen.

Arrow Satel Integra 64 Plus, alles diskret verdrahtet, kein Funk, 2xINT-TSI, 2xSatel Grey Dual, 6xVD-1, 8xS1, 1xB-3A, INT-VG, ETHM1-Plus, INT-GSM LTE, 2xSPW100, SP-4003. In Betrieb seit 02.01.2016.
Alle Beiträge dieses Benutzers finden
Diese Nachricht in einer Antwort zitieren
11-12-2018, 18:45
Beitrag: #18
RE: Garage in die Alarmanlage einbinden
Vielen Dank für deine Antwort!
Alle Beiträge dieses Benutzers finden
Diese Nachricht in einer Antwort zitieren
Antwort schreiben 


Möglicherweise verwandte Themen...
Thema: Verfasser Antworten: Ansichten: Letzter Beitrag
Shy INTEGRA32: neues Funksteuerungsmodul für 230V (ASW-100F ABAX) - wie einbinden? georg1010 4 1.945 14-08-2024 21:55
Letzter Beitrag: FrankAusNRW
  INT-TSH2 Bedienteil einbinden sebicm 1 1.771 11-08-2022 10:14
Letzter Beitrag: sebicm
  Integra Control: IP Kamera einbinden Kapparoma 3 5.283 03-03-2022 18:41
Letzter Beitrag: AaronK
  INTEGRA 32 - mehrere Funkhandsender einbinden georg1010 3 2.733 11-05-2021 06:29
Letzter Beitrag: banane



Benutzer, die gerade dieses Thema anschauen: